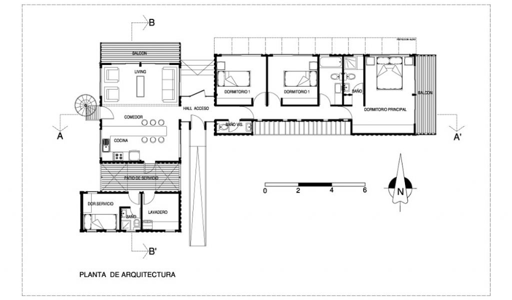
Shipping Container Home Floor Plans Bright Cargo Container Casa In Chile is related to House Plans. if you looking for Shipping Container Home Floor Plans Bright Cargo Container Casa In Chile and you feel this is useful, you must share this image to your friends. we also hope this image of Shipping Container Home Floor Plans Bright Cargo Container Casa In Chile can be useful for you. we will always give new source of image for you
have new images for Shipping Container Home Floor Plans Bright Cargo Container Casa In Chile? please contact us immediately.

Disclaimer
Shipping Container Home Floor Plans Bright Cargo Container Casa In Chile and all other pictures, designs or photos on our website are copyright of their respective owners. we get our pictures from another websites, search engines and other sources to use as an inspiration for you. please contact us if you think we are infringing copyright of your pictures using contact page. we will be very happy to help you.
Tags: shipping container
https://www.plougonver.com/shipping-container-home-floor-plans/shipping-container-home-floor-plans-bright-cargo-container-casa-in-chile/
Download by size:Handphone Tablet Desktop (Original Size)
Back To Shipping Container Home Floor Plans



















