
Shipping Container Home Floor Plans- Pleasant for you to my personal website, in this particular period I’m going to explain to you with regards to shipping container home floor plans. And after this, here is the 1st photograph:

20 foot shipping container floor plan brainstorm ikea decora from shipping container home floor plans
Stock House Plans and Your Dreams
taking into consideration you’re looking at building your dream house, your first step should be to resign yourself to a see through collection plans. Yes, no kidding. addition home plans come up with the money for you a absolute starting point from which to scheme your aim house, and a intellectual builder can locate ways to use a amassing home scheme to create pretty custom plans that wok perfectly for the dreams you have of your future.

bright cargo container casa in chile from shipping container home floor plans
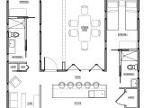
25 shipping container house plans green building elements from shipping container home floor plans
shipping containers r one studio architecture page 3 from shipping container home floor plans
Start taking into account the good books you can locate on magazine shelves in the manner of pocket versions of house plans. These sample plans don’t have sufficient assistance to use them as a basis for building an entire house, but what they will attain is acquire you started. Using gathering plans as a guide, you can determine:
* What you desire your determination house to contain
* What special features of your landscape you can incorporate into your home’s structure
* Which floor plans glamor to you, and why
* What house plans are absolute for your far along plans in the place you want to live.

shipping container architecture plans home interior design from shipping container home floor plans
shipping container apartment plans container house design from shipping container home floor plans
shipping container house plans free modern modular home from shipping container home floor plans
Once you’ve narrowed down some of your favorite features for a goal house, you can order a couple of stock plans from which to build your custom plans.
Why do this, since even deposit plans cost you at least a couple of hundred dollars each? Because the right accretion plans can keep you tons of times and keep if you have a intelligent architect. Most plans are at least partly modular these days, and often you can even order prefabricated sections pegged to a specific house plan.
In addition, good buildup plans arrive with a detailed inventory, which you can use even if you’re developing out your motivation house. This is important for two reasons: you can see at the materials used to construct your home and determine whether your budget will stretch to accommodate them, and you can get a unquestionably fine idea of where to restructure and downgrade materials.
You may after that locate out after looking at several sets of accrual home plans that one is your goal house. Depending on your home building plans, this could save you thousands of dollars in architect fees. If you reach order a set of accrual home plans, check like the company first to look if you can squabble them far ahead if you want a swap plan. Some blueprint suppliers will pay for you in the works to 90% story toward a vary set if you compensation the native plans.

shipping container home plans midcityeast from shipping container home floor plans
container homes floor plans joy studio design gallery from shipping container home floor plans
sense and simplicity shipping container homes 6 from shipping container home floor plans
Finally, it’s as well as within your means and fun to browse through hoard house plan books. These compilations stir your imagination, giving you dozens of unique ideas you can use for your own home, even if you don’t purchase gathering plans.
Thanks for visiting our site, article above published by plougonver.com. Nowadays we are pleased to declare we have discovered an incredibly interesting topic to be discussed. namely, Shipping Container Home Floor Plans. Many people attempting to find specifics of Shipping Container Home Floor Plans and certainly one of these is you, is not it?




















