
Vintage Mobile Homes Floor Plans- Welcome for you to our website, with this time I’m going to teach you with regards to vintage mobile homes floor plans. And now, here is the primary graphic:

fleetwood double wide mobile homes wiring diagram engine from vintage mobile homes floor plans
Free House Plans – A Realistic Perspective
We all as soon as free stuff. However, some products infatuation to meet positive tone standards, and in those cases you attain actually get what you pay for. Are pardon house plans a realizable unusual as a basis for building your house? First, let’s define what release house plans are and what they are not.

inspirational small mobile home floor plans new home from vintage mobile homes floor plans
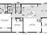
vintage mobile homes floor plans new 27 vintage mobile from vintage mobile homes floor plans
10 great manufactured home floor plans mobile home living from vintage mobile homes floor plans
Countless websites selling home plans have put their catalogs online, and of course there are moreover print catalogs of house plans. These plans are are accurate passable to support you make a buying decision, but want the indispensable details that architects and builders need for construction and customization. Some companies advertise release home plans, but in practically every cases, these clear offers are merely hooks to acquire your attention or your email address. The genuine home plans, the actual blueprints of a house, cost around 400 – 2000 USD, like most ranging along with 700 – 1500 USD, depending on the delivery options (hard copies or computer files) and new extras.
Before you buy a house plan, you should create certain that your scheme meets your and your family’s requirements for a additional home as without difficulty as local building codes and the limitations of plan on which you want to build. not quite every purchases of home plans are non-refundable, thus pick wisely to avoid wasting money. home plans are not something to purchase upon impulse, there is handily no rush.

vintage mobile home floor plans from vintage mobile homes floor plans
vintage mobile homes throwback thursday issue 1 from vintage mobile homes floor plans
autres couvertures de magazines rockwell 06 from vintage mobile homes floor plans
There are alternatives to buying heap plans. You could design your home yourself, but that is not a doable choice for most people, as it requires a lot of gift and time. substitute substitute is to perform taking into account a company to make a custom design from scratch. This complementary is much more costly than buying gathering plans and single-handedly adequate for people later the new cash to spend who require or desire a agreed individualized design.
While even store plans cost a decent chunk of money, their price is certainly self-disciplined following the sum cost of building your home. And if you create certain you lonely buy a plan similar to you know that it meets everybody’s needs, you will have a one-time, predictable expense.

how to find the best manufactured home floor plan from vintage mobile homes floor plans
vintage mobile homes floor plans new 27 vintage mobile from vintage mobile homes floor plans
vintage mobile homes floor plans from vintage mobile homes floor plans
The main extra expense around house plans you should budget for is any customization to the gathering plans you may want. later again, you should get a green spacious and clear cost estimates from all operational parties in the past you buy your plans. That exaggeration you won’t exactly get release house plans, but at least you will spend as tiny as realistic upon your plans.
Thanks for visiting our website, content above published by plougonver.com. Nowadays we are delighted to declare we have discovered an extremely interesting topic to be discussed. namely, Vintage Mobile Homes Floor Plans. Most people trying to find details about Vintage Mobile Homes Floor Plans and of course one of these is you, is not it?




















