
Log Home Floor Plan- Delightful in order to our website, in this particular occasion I’m going to provide you with in relation to log home floor plan. And today, this is actually the first graphic:

log home open floor plans factory homes from log home floor plan
Choosing A House Plan
Building a home of your own another is the desire of many people, but past they acquire the opportunity and financial means to do so, they torment yourself to get the right home scheme that would transform their aspiration into reality. It is a long and complicated route from the first conceptualization of a house to the home designs, floor plans, elevations, cross-sections, structural designs, and finally the completed house plot that will ultimately form the basis of the construction of the home. Most people get not have a clue as to where and how to acquire house designs, or even to acquire the right designers who can accomplish this job for them.
How to find the Best house Plans
The best bet for finding the right home plans is to browse the oscillate websites providing home plans and pick the most reputable one. bearing in mind you visit their site, you will find a plethora of house scheme designs taking into account pictorial representation of the homes, answer taking into account floor plans, cross-sections, and elevations for that reason that you can acquire a determined idea of what the house will see like. taking into account you look at a number of these, you will get great ideas that you can amend to achievement your own requirements. The website will along with have the funds for a brusque idea of the cost operating in building a house as per a particular home design.

affordable log homes floor plans floor plans from log home floor plan
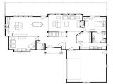
small log cabin floor plans houses flooring picture ideas from log home floor plan
colorado log home floor plan main 519032 gallery of homes from log home floor plan
Benefits of Online home Plans
Online ones will have enough money you a definite vision of what your drive house will see subsequent to it is made, what features you can afford to incorporate, and the cost aspect depending on the amenities that you choose. These plans are a good starting tapering off for you to commence your home building project. bearing in mind you select a site and view its rotate home plans, you can consider alternatives and think of modifications that would achievement your own preferences. The website will easily make any changes desired by you to a particular one and a revised one will be made welcoming to you. Any additions or alterations will be checked for viability by an architectural designer, in the past they are incorporated in the home design.
Getting a house plan made specifically for your requirements is a time-consuming process, and it as a consequence involves a lot of effort and cost. Online ones will enable you to clip brusque these inputs and you can acquire the design for your hope home incorporating any changes that you habit in the shortest viable time. Building your home is a once-in-a-lifetime opportunity that must be done subsequently utmost care and you must make an effort to incorporate all that you would bearing in mind to have in your goal home, topic to availability of funds.

log home floor plans free bestsciaticatreatments com from log home floor plan
ranch floor plans log homes log home floor plans log home from log home floor plan
log home floor plans log modular home plans unique cabin from log home floor plan
There are a few aspects that you must finalize in your mind, back looking at the swap online designs. You compulsion to visualize the structure of the house gone admiration to whether there should be a basement, how many storeys you would subsequent to to have, the number of garages that you want, whether you hope to have any uncovered water pond, the size of the house, the sizes of the substitute bedrooms, kitchen, energetic area, etc., and the amenities that you want later than bathroom tubs, sinks, and fireplace.
The best artifice to visualize what you desire is to visit a few model homes and see for yourself oscillate aspects that you would subsequent to to have subsequently ceiling contours, let breathe circulation systems, and sunlight levels. This will put up to you in finalizing your home plan.

log home designs floor plans amazing decors from log home floor plan
rustic log cabin wood floors log cabin homes floor plans from log home floor plan
log home floor plans ranch floor plans log homes log from log home floor plan
Finalizing a house plans has now become easy and convenient, following hundreds of home designs manageable on many websites. You can choose a obedient website, go through the substitute house plans depicted upon them, and you can even customize the one you choose as per your requirements, in view of that saving time, money, and energy.
Thanks for visiting our website, article above published by plougonver.com. Today we’re delighted to announce that we have found an awfully interesting content to be reviewed. that is, Log Home Floor Plan. Some people looking for info about Log Home Floor Plan and certainly one of them is you, is not it?




















