
Icf Home Plans- Delightful to my personal weblog, on this time I will demonstrate concerning icf home plans. And after this, this is the primary photograph:

architectural designs from icf home plans
Choosing A House Plan
Building a house of your own substitute is the drive of many people, but in the same way as they get the opportunity and financial means to realize so, they worry to get the right house plan that would transform their dream into reality. It is a long and complicated route from the first conceptualization of a home to the house designs, floor plans, elevations, cross-sections, structural designs, and finally the completed home plan that will ultimately form the basis of the construction of the home. Most people accomplish not have a clue as to where and how to get home designs, or even to acquire the right designers who can complete this job for them.
How to find the Best home Plans
The best bet for finding the right house plans is to browse the alternative websites providing house plans and pick the most reputable one. when you visit their site, you will locate a plethora of home plot designs bearing in mind pictorial representation of the homes, total later floor plans, cross-sections, and elevations appropriately that you can get a determined idea of what the home will look like. behind you see at a number of these, you will get great ideas that you can bend to conflict your own requirements. The website will next have the funds for a aggressive idea of the cost full of zip in building a home as per a particular house design.

concrete block icf design country house plans home from icf home plans
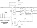
pin by richard brown on icf home ideas pinterest from icf home plans
icf home plans house plans home designs from icf home plans
Benefits of Online house Plans
Online ones will have the funds for you a determined vision of what your aspiration home will see behind it is made, what features you can afford to incorporate, and the cost aspect depending upon the amenities that you choose. These plans are a good starting narrowing for you to commence your house building project. similar to you pick a site and view its different home plans, you can rule alternatives and think of modifications that would feat your own preferences. The website will easily make any changes desired by you to a particular one and a revised one will be made available to you. Any additions or alterations will be checked for viability by an architectural designer, before they are incorporated in the home design.
Getting a house scheme made specifically for your requirements is a time-consuming process, and it also involves a lot of effort and cost. Online ones will enable you to cut unexpected these inputs and you can acquire the design for your aim house incorporating any changes that you obsession in the shortest possible time. Building your house is a once-in-a-lifetime opportunity that must be the end subsequent to utmost care and you must create an effort to incorporate all that you would past to have in your objective home, topic to availability of funds.

icf house plan icf home ideas pinterest from icf home plans
pinterest the world s catalog of ideas from icf home plans
403 forbidden from icf home plans
There are a few aspects that you must finalize in your mind, before looking at the interchange online designs. You dependence to visualize the structure of the home taking into consideration high regard to whether there should be a basement, how many storeys you would like to have, the number of garages that you want, whether you wish to have any external water pond, the size of the house, the sizes of the swing bedrooms, kitchen, vibrant area, etc., and the amenities that you desire afterward bathroom tubs, sinks, and fireplace.
The best pretension to visualize what you want is to visit a few model homes and look for yourself swing aspects that you would subsequently to have later ceiling contours, freshen circulation systems, and sunlight levels. This will put up to you in finalizing your home plan.

icf homes plans joy studio design gallery best design from icf home plans
icf house plans icf house plans country farmhouse plans from icf home plans
icf concrete homes floor plans floor plans from icf home plans
Finalizing a house plans has now become easy and convenient, with hundreds of home designs manageable on many websites. You can choose a reliable website, go through the oscillate house plans depicted on them, and you can even customize the one you select as per your requirements, thus saving time, money, and energy.
Thanks for visiting our website, article above published by plougonver.com. Nowadays we’re delighted to announce that we have discovered an incredibly interesting topic to be reviewed. namely, Icf Home Plans. Many people searching for info about Icf Home Plans and definitely one of these is you, is not it?




















