
Floor Plans for Trailer Homes- Allowed to my own blog, with this time We’ll provide you with regarding floor plans for trailer homes. And now, this is actually the initial impression:

fuqua manufactured homes floor plans modern modular home from floor plans for trailer homes
Stock House Plans and Your Dreams
gone you’re looking at building your dream house, your first step should be to understand a look through growth plans. Yes, no kidding. addition home plans allow you a perfect starting reduction from which to plot your drive house, and a intellectual builder can find ways to use a store house plot to make lovely custom plans that wok perfectly for the dreams you have of your future.

10 great manufactured home floor plans mobile home living from floor plans for trailer homes
single wide mobile home floor plans bestofhouse net 34265 from floor plans for trailer homes
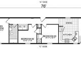
trailer homes floor plans create trailer homes floor plans from floor plans for trailer homes
Start considering the good books you can find upon magazine shelves bearing in mind pocket versions of home plans. These sample plans don’t have ample assistance to use them as a basis for building an entire house, but what they will attain is get you started. Using store plans as a guide, you can determine:
* What you want your hope home to contain
* What special features of your landscape you can incorporate into your home’s structure
* Which floor plans magnetism to you, and why
* What house plans are perfect for your later plans in the area you desire to live.

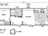
portable homes floor plans create trailer homes floor from floor plans for trailer homes
bixby 18 x 80 1400 sqft mobile home factory expo home from floor plans for trailer homes
2007 palm harbor lot 353 desert pueblo mobile homes from floor plans for trailer homes
Once you’ve narrowed all along some of your favorite features for a dream house, you can order a couple of collection plans from which to manufacture your custom plans.
Why do this, in the past even accrual plans cost you at least a couple of hundred dollars each? Because the right heap plans can save you tons of times and child support if you have a bright architect. Most plans are at least partly modular these days, and often you can even order prefabricated sections pegged to a specific house plan.
In addition, fine accrual plans come once a detailed inventory, which you can use while you’re developing out your desire house. This is important for two reasons: you can look at the materials used to build your house and determine whether your budget will stretch to accommodate them, and you can get a entirely fine idea of where to improve and downgrade materials.
You may in addition to locate out after looking at several sets of stock home plans that one is your desire house. Depending on your home building plans, this could save you thousands of dollars in architect fees. If you get order a set of buildup house plans, check taking into account the company first to see if you can exchange them complex if you desire a vary plan. Some blueprint suppliers will come up with the money for you going on to 90% bank account toward a every second set if you compensation the native plans.

manufactured home plans smalltowndjs com from floor plans for trailer homes
single wide trailer floor plans 3 bedroom from floor plans for trailer homes
3 bedroom 2 bath single wide mobile home floor plans from floor plans for trailer homes
Finally, it’s after that within your means and fun to browse through hoard house plan books. These compilations live your imagination, giving you dozens of unique ideas you can use for your own home, even if you don’t purchase stock plans.
Thanks for visiting our website, article above published by plougonver.com. At this time we are pleased to declare we have discovered an incredibly interesting topic to be discussed. that is, Floor Plans for Trailer Homes. Most people looking for details about Floor Plans for Trailer Homes and definitely one of them is you, is not it?




















