ryan homes

Ryan Homes Ranch Floor Plans

Ryan Homes Ranch Floor Plans New Ryan Homes Ohio Floor Plans New Home Plans Design
Ryan Homes Ranch Floor Plans New Ryan Homes Ohio Floor Plans New Home Plans Design
Ryan Homes Ranch Floor Plans Ryan Homes Floor Plans A Victoria Falls In Palmer Village
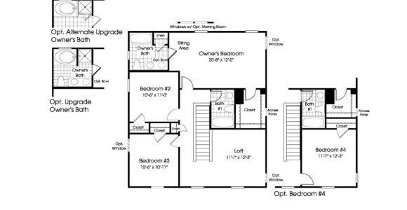
Ryan Homes Ranch Floor Plans Ryan Homes Floor Plans Houses Flooring Picture Ideas Blogule
Ryan Homes Ranch Floor Plans Ryan Homes Floor Plans Avalon Bee Home Plan Home

Ryan Homes Ranch Floor Plans- Welcome for you to our weblog, in this particular time period I am going to teach you in relation to ryan homes ranch floor plans. And today, this is actually the 1s...

Ryan Homes Savoy Model Floor Plan

Ryan Homes Savoy Model Floor Plan Savoy R Ing the Moment the Ryan Homes Experience Meet
Ryan Homes Savoy Model Floor Plan Savoy R Ing the Moment the Ryan Homes Experience Meet
Ryan Homes Savoy Model Floor Plan Savoy Ryan Homes Floor Plan Avie Home
Ryan Homes Savoy Model Floor Plan Building A Ryan Homes Ravenna Floor Plan
Ryan Homes Savoy Model Floor Plan Ryan Homes Savoy Model Floor Plan Luxury What S Buzzin We

Ryan Homes Savoy Model Floor Plan- Encouraged for you to my own weblog, in this particular time I am going to explain to you regarding ryan homes savoy model floor plan. Now, this is the initial ...

Ryan Homes Plans

Ryan Homes Plans New Ryan Home Floor Plans New Home Plans Design
Ryan Homes Plans New Ryan Home Floor Plans New Home Plans Design
Ryan Homes Plans Luxury Ryan Homes Venice Floor Plan New Home Plans Design
Ryan Homes Plans Awesome Ryan Homes Rome Floor Plan New Home Plans Design
Ryan Homes Plans New Ryan Home Floor Plans New Home Plans Design

Ryan Homes Plans- Delightful to be able to my personal weblog, within this occasion I'll demonstrate in relation to ryan homes plans. And after this, this is the primary graphic: luxury ryan h...

Ryan Homes Milan Floor Plan

Ryan Homes Milan Floor Plan Ryan Homes Floor Plans Houses Flooring Picture Ideas Blogule
Ryan Homes Milan Floor Plan Ryan Homes Floor Plans Houses Flooring Picture Ideas Blogule
Ryan Homes Milan Floor Plan Makin 39 Milan Memories Floorplan Selections
Ryan Homes Milan Floor Plan Beautiful Ryan Home Plans 14 Ryan Homes Milan Floor Plan
Ryan Homes Milan Floor Plan Ryan Homes Floor Plans Houses Flooring Picture Ideas Blogule

Ryan Homes Milan Floor Plan- Encouraged to be able to the blog, with this time I'll explain to you concerning Ryan Homes Milan Floor Plan. And now, this can be a primary image: makin 39 milan ...