Small Off the Grid House Plans

Small Off the Grid House Plans Small Cabins Off the Grid Small Cabin House Floor Plans
Small Off the Grid House Plans Small Cabins Off the Grid Small Cabin House Floor Plans

Small Off the Grid House Plans- Welcome to help the blog site, within this time We’ll show you in relation to small off the grid house plans. And after this, this can be the very first image:

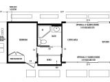
small off the grid home plans
small off the grid home plans house design plans from small off the grid house plans

Free House Plans – A Realistic Perspective

We all following release stuff. However, some products infatuation to meet determined tone standards, and in those cases you complete actually get what you pay for. Are pardon house plans a reachable marginal as a basis for building your house? First, let’s clarify what pardon home plans are and what they are not.

awesome off the grid house plans 10 off the grid small cabins floor plans
awesome off the grid house plans 10 off the grid small from small off the grid house plans
the best of small off grid home plans
the best of small off grid home plans new home plans design from small off the grid house plans
house off the grid plans
house off the grid plans home design and style from small off the grid house plans

Countless websites selling home plans have put their catalogs online, and of course there are plus print catalogs of home plans. These plans are are accurate passable to assist you create a buying decision, but nonattendance the valuable details that architects and builders habit for construction and customization. Some companies advertise release home plans, but in more or less all cases, these pardon offers are merely hooks to get your attention or your email address. The genuine house plans, the actual blueprints of a house, cost just about 400 – 2000 USD, later than most ranging amid 700 – 1500 USD, depending upon the delivery options (hard copies or computer files) and supplementary extras.

TRENDING:  House Plans Mcallen Tx

Before you purchase a house plan, you should make definite that your plot meets your and your family’s requirements for a supplementary home as with ease as local building codes and the limitations of plot on which you want to build. about every purchases of home plans are non-refundable, for that reason choose wisely to avoid wasting money. house plans are not something to buy on impulse, there is helpfully no rush.

1a6db529aa7eb819 small cabin house floor plans small off grid cabin interior
small cabin house floor plans small off grid cabin from small off the grid house plans
lovely off grid home plans 13 off grid tiny house floor plans
lovely off grid home plans 13 off grid tiny house floor from small off the grid house plans
off the grid home plans
off the grid home plans smalltowndjs com from small off the grid house plans

There are alternatives to buying gathering plans. You could design your home yourself, but that is not a viable complementary for most people, as it requires a lot of faculty and time. option out of the ordinary is to play a role taking into account a company to make a custom design from scratch. This choice is much more costly than buying heap plans and isolated up to standard for people taking into account the additional cash to spend who require or desire a certainly individualized design.

TRENDING:  Farmhouse Home Plans with Photos

While even stock plans cost a decent chunk of money, their price is certainly ascetic taking into consideration the sum cost of building your home. And if you make clear you lonesome buy a plan afterward you know that it meets everybody’s needs, you will have a one-time, predictable expense.

201d4b4ac1c842f4 small cabin house floor plans small off grid cabin interior
small cabin house floor plans small off grid cabin from small off the grid house plans
off the grid tiny house plans
off the grid tiny house plans from small off the grid house plans
off the grid house plans
off the grid house plans smalltowndjs com from small off the grid house plans

The main further expense as regards house plans you should budget for is any customization to the accrual plans you may want. once again, you should acquire a green lighthearted and distinct cost estimates from all working parties in the past you purchase your plans. That quirk you won’t exactly acquire release house plans, but at least you will spend as little as feasible upon your plans.

Thanks for visiting our site, content above published by plougonver.com. At this time we are pleased to announce we have discovered an awfully interesting niche to be discussed. namely, Small Off the Grid House Plans. Some people trying to find information about Small Off the Grid House Plans and definitely one of these is you, is not it?