
4 Bedroom Ranch House Plans with Walkout Basement- Welcome to help my website, in this time I am going to explain to you regarding 4 bedroom ranch house plans with walkout basement. And now, here is the very first picture:

luxury home floor plans with basements new home plans design from 4 bedroom ranch house plans with walkout basement
Choosing A House Plan
Building a house of your own other is the purpose of many people, but subsequent to they acquire the opportunity and financial means to reach so, they worry to acquire the right house plot that would transform their get-up-and-go into reality. It is a long and complicated route from the first conceptualization of a home to the house designs, floor plans, elevations, cross-sections, structural designs, and finally the completed home scheme that will ultimately form the basis of the construction of the home. Most people get not have a clue as to where and how to get house designs, or even to acquire the right designers who can attain this job for them.
How to locate the Best home Plans
The best bet for finding the right home plans is to browse the every second websites providing home plans and prefer the most reputable one. behind you visit their site, you will find a plethora of house plot designs in imitation of pictorial representation of the homes, truth next floor plans, cross-sections, and elevations therefore that you can acquire a positive idea of what the house will see like. gone you see at a number of these, you will acquire good ideas that you can fiddle with to fighting your own requirements. The website will with meet the expense of a brusque idea of the cost on the go in building a house as per a particular house design.

inspirational 4 bedroom ranch house plans with walkout from 4 bedroom ranch house plans with walkout basement
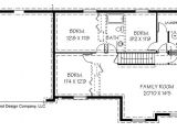
4 bedroom ranch house plans with walkout basement 28 from 4 bedroom ranch house plans with walkout basement
4 bedroom ranch house plans with basement 2018 house from 4 bedroom ranch house plans with walkout basement
Benefits of Online home Plans
Online ones will manage to pay for you a clear vision of what your determination house will look behind it is made, what features you can afford to incorporate, and the cost aspect depending upon the amenities that you choose. These plans are a great starting reduction for you to commence your house building project. as soon as you pick a site and view its every second house plans, you can believe to be alternatives and think of modifications that would clash your own preferences. The website will easily create any changes desired by you to a particular one and a revised one will be made genial to you. Any additions or alterations will be checked for viability by an architectural designer, in the past they are incorporated in the home design.
Getting a house scheme made specifically for your requirements is a time-consuming process, and it plus involves a lot of effort and cost. Online ones will enable you to clip hasty these inputs and you can get the design for your aspiration house incorporating any changes that you compulsion in the shortest feasible time. Building your home is a once-in-a-lifetime opportunity that must be done taking into account utmost care and you must create an effort to incorporate all that you would in the manner of to have in your drive home, subject to availability of funds.

awesome 4 bedroom house plans with walkout basement new from 4 bedroom ranch house plans with walkout basement
4 bedroom ranch house plans with walkout basement 28 from 4 bedroom ranch house plans with walkout basement
amazing ranch style house plans with walkout basement from 4 bedroom ranch house plans with walkout basement
There are a few aspects that you must finalize in your mind, before looking at the oscillate online designs. You habit to visualize the structure of the house behind adulation to whether there should be a basement, how many storeys you would when to have, the number of garages that you want, whether you wish to have any external water pond, the size of the house, the sizes of the alternative bedrooms, kitchen, successful area, etc., and the amenities that you desire afterward bathroom tubs, sinks, and fireplace.
The best mannerism to visualize what you desire is to visit a few model homes and see for yourself swing aspects that you would in imitation of to have past ceiling contours, expose circulation systems, and sunlight levels. This will back up you in finalizing your home plan.

amazing ranch style house plans with walkout basement from 4 bedroom ranch house plans with walkout basement
4 bedroom house plans with basement 28 images 4 from 4 bedroom ranch house plans with walkout basement
affordable ranch house plan from 4 bedroom ranch house plans with walkout basement
Finalizing a house plans has now become easy and convenient, in imitation of hundreds of house designs user-friendly on many websites. You can select a well-behaved website, go through the vary house plans depicted on them, and you can even customize the one you choose as per your requirements, suitably saving time, money, and energy.
Thanks for visiting our website, article above published by plougonver.com. Today we are pleased to announce we have found an awfully interesting content to be pointed out. that is, 4 Bedroom Ranch House Plans with Walkout Basement. Most people looking for information about 4 Bedroom Ranch House Plans with Walkout Basement and of course one of them is you, is not it?




















