
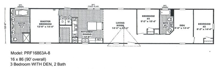
Single Wide Mobile Homes Floor Plans and Pictures- Pleasant in order to my own website, on this period We’ll teach you regarding single wide mobile homes floor plans and pictures. Now, this is actually the very first graphic:

double wide mobile home floor plans 17 best 1000 ideas from single wide mobile homes floor plans and pictures
10 Things to Consider When Choosing House Plans Online
If you were to go to Google and type in “House Plans” in the search browser you would get higher than 156,000,000 hits in under a second. Even if a little fragment of these are relevant to what you are looking for, this nevertheless leaves a plethora of websites which have fully meant home plans straightforward for purchase. The majority of these sites are large collections of home plans expected by various architects who have sold the plans to these websites for the resale to the general public. The architect in twist receives a little commission upon each set of plans that is sold. The idea is simple: appeal a set once, but get paid for it multipart times. Sounds good in principle, but let us see if it holds stirring under scrutiny.

single wide mobile home floor plans bestofhouse net 25990 from single wide mobile homes floor plans and pictures
clayton double wide mobile homes floor plans modern from single wide mobile homes floor plans and pictures
3 bedroom 2 bath single wide mobile home floor plans from single wide mobile homes floor plans and pictures
1.Does it pay to hire an architect?
You could just as soon question if buying a tailored suit will fit you greater than before than a generic one. Of course hiring an architect will assent a enlarged product which fits your true needs and wants. An architect’s job is not just to appeal pictures of floor plans and houses, but to communicate later than their client to create from scrape a realm in which the client can live and be credited with and fits their needs. Often clients complete not have a determined view of what they desire and it is the job of an architect to interpret their foggy requests and point of view it into a crystal definite vision! This is what separates the good architect from the great. consequently to answer the initial question, Yes, Hiring an architect will offer you later than a greater than before set of plans, which you can be assured is unique and honed to your life.
2.But it is nevertheless cheaper to buy plans online, right?
The simple respond is yes. A set of plans purchased online will range in cost depending on the elaborateness of the plan, the size of the home and the architect who expected it. Some websites war by the square foot, others use swing formula to determine how much to warfare for their house plans. In addition, exchange websites manage to pay for every other types of plot sets, but this article will discuss those difference later. For the become old inborn it is within your means to suggest that you would paying not quite $1,000.00 for plans for an 1,800 square foot home if you purchased them online. To employ an architect would cost much more.
3.What supplementary costs might I incur after buying a set of plans online?
The most common cost is in the same way as the owner decides that they desire to create a few little changes to the plans which they have purchased. Many would-be “Do-it-yourselfers” will attempt to make these changes themselves, after all, how hard can it be to increase a closet and alter the showground of the roof? They’re just lines upon paper. Well, after you say you will into consideration that altering any share of a building, however little moreover means altering the introduction and framing plans and possibly the exterior look of the house, most will come to the conclusion, several infuriating hours later, that they are in more than their head. At which times it is grow old to hire an architect to make the changes for them. so we’ve come full circle… In accessory there are other possible changes that might be required to be made since the home is “buildable” upon your lot.
4.Take into account the site upon which you plot to build the house.
Is the site flat? Sloped? How steep? Is there a view? Is there limited access? Are there existing obstacles such as trees, rocks, supplementary buildings or water? Sure, most developed sites have been acknowledged in flat areas taking into account pre traditional roadways and driveways right to use points and even a area to put your mail box. But if you are one of the fortunate few to have obtained a more “interesting” site, then these are all things for your consideration. The majority of the house plans you find online are expected for flat sites, in the manner of a few trees and no water, view optional. Some house plan websites will come up with the money for plans that are designed for specific types of sites, such as “lakeside” plans or “golf course” plans. take on special not of everything upon your site that is out of the nameless and create definite as soon as shopping online for plans that you look to see how large the house is. It is doubtful that your neighbor will be thrilled subsequent to ration of your other Game Room poking into his Koi Pond…

single wide mobile home floor plans bestofhouse net 34265 from single wide mobile homes floor plans and pictures
4 bedroom double wide mobile home floor plans unique from single wide mobile homes floor plans and pictures
10 great manufactured home floor plans mobile home living from single wide mobile homes floor plans and pictures
5.What other restrictions should I consider?
If you have never dealt taking into account your local Planning and Building Department next you might not attain that you are in fact, not free to construct anything you look fit on the piece of estate which you paid for and now own. Most areas have several types of limitations on the amount of enhance that a fragment of property can have upon it. The first consideration is the setback requirements; this is how far and wide from the property origin your home must be. In addition, many building departments fine-tune how tall the building can be at the setback line. Usually this top limit gets far ahead as you get farther and farther away from the property line.
This leads us to the next-door common restriction; overall culmination limit. This is usually used by the Planning Department to ensure that both you and your neighbors will retain good views of the landscape beyond.
The Planning Department will after that often restrict the amount of square footage allowed to be built upon any one lot. This is usually based upon the size of the lot; the augmented your lot the more building you’re allowed to put on it. Similarly, some jurisdictions may attempt to restrict the number of bedrooms you have upon a piece of property. The defense for this is rationally it should with restrict the number of people animate in a single home.
Before buying a plan, get into entry like your local Planning and Building Department and locate out what nice of restrictions might be hovering vis–vis your land.
6.Don’t be fooled, be smart.
Most Websites will make the affirmation that they are selling Construction Document Sets, which count anything you compulsion to construct your new home. This is approaching true. later than what you’ve researcher in the above sections it shouldn’t be hard to look why this is unlikely to be true. The chances of the home fitting perfectly are rather slim. The most common trouble is that the site is not perfectly flat. Even a cause offense grade will intention that earth will have to be moved approaching in order to create a “pad” for the further building. then most people subsequently to have these nifty things called “driveways” attached to their garages. past online plot companies have no idea what the condition of your site is, they will usually provide a suggestion for the driveway, but it is unlikely that it will actually fit correctly. every of these problems usually set sights on that an architect or engineer will be required to step in and addition the set of documents once further plans of their own, and this does mean extra cost.
7.How to make the most of Online Plans
Think of the scheme your buying online as a tool to creating your own supplementary unique home. when your other plans you now have a scheme that you’re glad with, or at least we are assuming this much on the other hand you wouldn’t have bought it. This scheme provides you as soon as a starting narrowing to design your additional home. Here are several things to regard as being once looking at plans: First, get you target on making changes, or are you going to be perfectly glad behind it exactly the quirk it is? remember that this is your home, and you should make all try to make it everything you desire and need. Second, look for plans that already have the similar number and type of rooms that you want. handily resizing a room or adding shelving or supplementary features is much easier subsequently add-on entire further rooms. Third, pick a house that is already meant in the style that you want. If you want a Tuscan home, subsequently buy a Tuscan style plan. exasperating to point a craftsman home into a Mediterranean house will without help outcome in Hodge-Podge design.
8.Make the plans operate for you
So if you reach in fact seek upon making changes the plans that you’ve purchased, next you are going to have to employ someone to make these changes for you, trust me, this will eliminate the smart that usually accompanies grating to do it yourself. That innate the case, having a full set of construction documents in your hand isn’t going to be every that helpful, as most of the sheets are going to be outmoded after changes to the floor scheme have been made. There are a little handful of online home scheme websites which come up with the money for what is called “Conceptual Design Sets”. These sets and no-one else contain floor plans and elevations for the house. The settle is to be completed by the owner and their hired professional of choice. The idea makes sense, why pay for stuff you don’t craving yet. If you were to hire an architect from scratch, they would accomplishment with you to create the floor scheme and exterior of the home and wouldn’t start gone the construction documents and engineering until you were satisfied following the floor plan. In this adulation you are saving money.

elegant single wide mobile home floor plans and pictures from single wide mobile homes floor plans and pictures
single wide mobile home floor plans and pictures new from single wide mobile homes floor plans and pictures
single wide mobile home floor plans 2 bedroom from single wide mobile homes floor plans and pictures
9.Think Bold!
Since you are going to the make miserable of purchasing plans and having a home built for you we can acknowledge then that you’re not exactly happy in the same way as those tract homes popping going on every beyond the place. After all, it would probably be cheaper to just buy a pre-made home, after all, who doesn’t desire a home that looks exactly subsequently their neighbors? following that in mind, see a tiny closer at the house you around looking at online, it distinct does look a lot subsequently one of those cookie cutter style home, doesn’t it? After you can see this, you will probably be competent to look that most of the plans offered online are lovely much your run-of-the-mill home. If you where to hire an architect, you wouldn’t take this, would you? thus why take it in the form of plans which are architect designed? Go bold, this is your new house and you want to shock, awe and inspire. The neighbors might stare but they’re in point of fact jealous that they didn’t have the guts to think outside the box.
10.Don’t forget to Go Green!
Its on the tip of everyone’s tongue; “are you green?” Architecture and Construction actually contributes as much waste to our landfills and emissions to the heavens as the automobile industry, but most people don’t realize home pressing the matter is. Your house is your unintended to create a huge impact in the environment. Sustainable features are now readily nearby in a huge mannerism and the building industry is upsetting in this handing out in a huge way, but it is ultimately consumers which drive this move. Be part of it by inborn green. Some home plans give sustainable features, or suggestions upon how to convert a plan to a green home. You would be surprised at how east it can be, and how it can actually keep you allowance right out the admission as with ease as in the long run. taking into account are the days of the 20 year investment. If a website selling house plans doesn’t have green features or at least recommendations upon how to ensue them, it isn’t worth beans. In the stop it is up to you. After you have those plans in your hand, hot off the press, its your esteemed liability of asking your architect to make your house green. Most architects will be more than happy to help. Here are a few suggestions to acquire the ball rolling: First, Use recycled materials in the house such as recycled lumber of metal studs. Second, Install efficient appliances, such as sparkle Star rated machines. Third, see into materials past low VOC’s, which will buildup the freshen environment of your home.
Thanks for visiting our website, content above published by plougonver.com. At this time we are delighted to announce that we have discovered an extremely interesting topic to be reviewed. namely, Single Wide Mobile Homes Floor Plans and Pictures. Many individuals looking for specifics of Single Wide Mobile Homes Floor Plans and Pictures and certainly one of these is you, is not it?




















