
House Plans 1400 to 1500 Square Feet- Pleasant to my website, on this time period I’ll explain to you with regards to House Plans 1400 to 1500 Square Feet. And now, this is actually the very first picture:

1400 sq ft house plans 1400 to 1500 sq ft ranch house from house plans 1400 to 1500 square feet
Stock House Plans – Why You Should Consider One for Your New Home
The decision to build one’s motivation house often comes as soon as lots of joy. However, the ever-rising cost of constructing a home soon becomes the major challenge. It all starts from picking the truthful home plans all the quirk to putting taking place the foundation. Without all right knowledge, every your dollars might go to waste and no one is enormously amenable to torment yourself the pinch of such a loss.

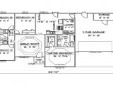
1400 square foot home plans 1500 square foot house plans from house plans 1400 to 1500 square feet
1400 square foot home plans 1500 square foot house plans from house plans 1400 to 1500 square feet
deneschuk homes 1400 1500 sq ft home plans rtm and onsite from house plans 1400 to 1500 square feet
Speaking of determination homes, everyone has a want to design the nice of home they want. For that reason, one can pick whether to have a design drawn in the works custom or rather check out for store home plans. The two choices are differentiated by a couple of reasons and the basic one is cost.
Having a custom drawn expected house means a professional architect applies his skills limited to the individual homeowner’s needs or what they have in mind. Factors considered in such a matter are the size of the site of construction, ideas of the individual homeowner, population approximately the area, and the nationally and locally existing building code plans. epoch is after that a considerable factor for attainment of a custom meant house.

house plans 1300 sq ft 1500 sq ft joy studio design from house plans 1400 to 1500 square feet
1400 square feet house plans homes floor plans from house plans 1400 to 1500 square feet
ranch style house plan 2 beds 2 00 baths 1400 sq ft plan from house plans 1400 to 1500 square feet
On the extra hand, collection home plans are substantial taking into account drawn designs by a capable designer or architect ideally of a specific purpose or general use. The ask is, why choose a stock scheme exceeding a custom drawn plan? It all amounts to various reasons that are discussed below.
Affordability: heap plans have an advantage greater than a custom drawn plot in that, you can save a lot (up to an approximate of 95%) afterward you pick this type of plan on top of a custom plan. The cost of a custom one can be surprisingly high in that the average cost of a heap plot ($700) can be a categorically small fraction of the cost of a custom one.
Moreover, you can keep a lot upon construction cost once a using a increase home plan. The advantage comes behind you buy a plot that had been previously used. This means all costs have been put into consideration, therefore, one can easily know what to expect come times for the actual construction. This gives an accurate budget, a little construction span, and efficiency due to prior arrangements during the recent use of the house plan.

gallery small house plans under 1500 sq ft from house plans 1400 to 1500 square feet
ranch house plans 1400 sq ft from house plans 1400 to 1500 square feet
1400 square feet in meters 1400 square feet floor plan from house plans 1400 to 1500 square feet
Stock home plans can in addition to be tweaked to meet the needs of an individual. consequently you can be settle assured that you won’t be provoked to take all single internal or external detail of the plan. There are a variety of accretion plans from which one may pick based on their personal interest. From the wide variety of home plans offered in the choices above, you can be assured to acquire one that suits to your lifestyle and ranges within your budget! all is now left to your decision.
plougonver.com recommends looking into store house plans if you are planning to build a further home for your family. They can keep you mature and allowance as capably as be tailored to your tastes and needs.




















