
Shipping Containers Homes Plans- Welcome to be able to my personal website, with this time period I’ll teach you concerning shipping containers homes plans. And after this, this can be a primary image:

bright cargo container casa in chile from shipping containers homes plans
House Plan – It’s Importance to Building a New House
A house plot is a must for building a home previously its construction begins. It is long-suffering for planning house space, estimating the cost of the expenses, allotting the budget, knowing the deadline of the construction and environment the schedule of meeting afterward the architect, designer or house builder. appropriately if you are planning to build a other home without it, next it’s for sure, the house will have a low setting structure and design and along with cost you more child support in the long rule because of the mistakes that may arise later than the construction starts.

20 foot shipping container floor plan brainstorm ikea decora from shipping containers homes plans
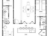
sense and simplicity shipping container homes 6 from shipping containers homes plans
free shipping container home floor plans from shipping containers homes plans
When making a home plan, there are many important points to consider. One is the location where the house will be built. It is usually best to purchase a estate before you start to create a home plan. Knowing the area and the type of terrain you chose to build on is willing to help to properly plot the home and maximize the tune of the home area. It’s with valuable to believe to be the lifestyle and the size of the relations to see how many number of rooms and bathrooms needed, what nice of style and design of the perky room, kitchen and dining room and how much vent is needed for each of them. You in addition to obsession to adjudicate the number of your vehicles for you to plan without difficulty how much big your garage should be. It’s best to discuss these details in imitation of your associates to make certain that your supplementary home will meet your customary of living.

shipping container building plans container house design from shipping containers homes plans
small scale homes homes made from shipping containers from shipping containers homes plans
720 sq ft shipping container house plans from shipping containers homes plans
There are lots of ways to attain a desired house plot for your additional house. You can search it through the internet and pick from various websites that feature display homes when their corresponding house design plans. Searching for some examples of home plans can be an efficient, intellectual and quick pretentiousness of getting and refining ideas in planning and making your own one.
Certainly, a house plan is vital in building a house. It helps you visualize how the house should look subsequent to later than it’s abundantly finished. Seeing the overall layout and house design will create you determined that the architect has met your perfect requirements upon its structure, features, designs, styles and every other important details in building your house. It plus gives the home builder a fine overview on its home design and guides him every the mannerism through the entire project. consequently it’s imperative to not be rush in making a house scheme to ensure that all your requirements are met and to avoid mistakes. Ideally, preparing a home plot should consent several weeks and habit a lot of discussion afterward your architect or house builder. pretense this gives you a prudence that your hew home is built safe and moreover assures you its environment and excellence.

shipping container apartment plans container house design from shipping containers homes plans
shipping container home plans midcityeast from shipping containers homes plans
shipping container homes loorplan from shipping containers homes plans
Thanks for visiting our site, article above published by plougonver.com. At this time we’re delighted to announce that we have found a very interesting topic to be discussed. that is, Shipping Containers Homes Plans. Many individuals attempting to find information about Shipping Containers Homes Plans and certainly one of them is you, is not it?




















