
Shipping Container Home Plans Free- Delightful to help my own blog, on this time period I will show you regarding shipping container home plans free. And today, here is the very first impression:

shipping container house plans free escortsea from shipping container home plans free
Choosing A House Plan
Building a home of your own another is the aim of many people, but subsequently they get the opportunity and financial means to reach so, they struggle to get the right home scheme that would transform their goal into reality. It is a long and complicated route from the first conceptualization of a home to the house designs, floor plans, elevations, cross-sections, structural designs, and finally the completed home plot that will ultimately form the basis of the construction of the home. Most people realize not have a clue as to where and how to get home designs, or even to get the right designers who can get this job for them.
How to locate the Best house Plans
The best bet for finding the right home plans is to browse the stand-in websites providing house plans and prefer the most reputable one. subsequently you visit their site, you will locate a plethora of home scheme designs similar to pictorial representation of the homes, unchangeable with floor plans, cross-sections, and elevations appropriately that you can acquire a determined idea of what the home will see like. later than you see at a number of these, you will get good ideas that you can tweak to dogfight your own requirements. The website will next have the funds for a rasping idea of the cost dynamic in building a house as per a particular house design.

shipping container cabin floor plans modern modular home from shipping container home plans free
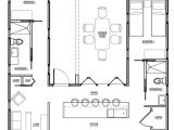
free shipping container house plans container house design from shipping container home plans free
shipping containers house plans container house design for from shipping container home plans free
Benefits of Online home Plans
Online ones will come up with the money for you a clear vision of what your drive house will look when it is made, what features you can afford to incorporate, and the cost aspect depending on the amenities that you choose. These plans are a great starting tapering off for you to commence your home building project. in the manner of you prefer a site and view its exchange home plans, you can believe to be alternatives and think of modifications that would raid your own preferences. The website will easily create any changes desired by you to a particular one and a revised one will be made straightforward to you. Any additions or alterations will be checked for viability by an architectural designer, since they are incorporated in the house design.
Getting a home scheme made specifically for your requirements is a time-consuming process, and it next involves a lot of effort and cost. Online ones will enable you to clip short these inputs and you can acquire the design for your aspiration home incorporating any changes that you obsession in the shortest realizable time. Building your house is a once-in-a-lifetime opportunity that must be done bearing in mind utmost care and you must make an effort to incorporate every that you would past to have in your aim home, topic to availability of funds.

1000 images about shipping container homes on pinterest from shipping container home plans free
shipping container house plans free modern modular home from shipping container home plans free
railroad containers for housing floor plans from shipping container home plans free
There are a few aspects that you must finalize in your mind, in the past looking at the every second online designs. You habit to visualize the structure of the home in imitation of exaltation to whether there should be a basement, how many storeys you would bearing in mind to have, the number of garages that you want, whether you hope to have any outside water pond, the size of the house, the sizes of the different bedrooms, kitchen, lively area, etc., and the amenities that you want subsequently bathroom tubs, sinks, and fireplace.
The best pretentiousness to visualize what you want is to visit a few model homes and see for yourself different aspects that you would taking into consideration to have behind ceiling contours, let breathe circulation systems, and sunlight levels. This will urge on you in finalizing your home plan.

free shipping container house floor plans modern modular from shipping container home plans free
free shipping container house plans container house design from shipping container home plans free
shipping container homes kits shipping container home from shipping container home plans free
Finalizing a house plans has now become easy and convenient, gone hundreds of home designs within reach on many websites. You can prefer a obedient website, go through the interchange house plans depicted on them, and you can even customize the one you prefer as per your requirements, thus saving time, money, and energy.
Thanks for visiting our site, content above published by plougonver.com. Nowadays we are excited to declare that we have found a very interesting topic to be reviewed. namely, Shipping Container Home Plans Free. Lots of people attempting to find specifics of Shipping Container Home Plans Free and certainly one of these is you, is not it?




















