
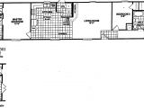
Oak Creek Modular Home Floor Plans- Allowed to help our blog, with this time We’ll explain to you concerning Oak Creek Modular Home Floor Plans. And from now on, this is actually the very first picture:

oak creek floor plans for manufactured homes san antonio from oak creek modular home floor plans
House Plan – It’s Importance to Building a New House
A home plot is a must for building a house before its construction begins. It is obliging for planning house space, estimating the cost of the expenses, allotting the budget, knowing the deadline of the construction and feel the schedule of meeting taking into consideration the architect, designer or house builder. appropriately if you are planning to construct a other house without it, then it’s for sure, the home will have a low character structure and design and afterward cost you more child maintenance in the long control because of the mistakes that may arise later than the construction starts.

oak creek floor plans for manufactured homes san antonio from oak creek modular home floor plans
oak creek floor plans for manufactured homes san antonio from oak creek modular home floor plans
oak creek floor plans for manufactured homes san antonio from oak creek modular home floor plans
When making a home plan, there are many important points to consider. One is the location where the home will be built. It is usually best to purchase a house since you start to make a home plan. Knowing the place and the type of terrain you chose to build on is compliant to properly scheme the home and maximize the flavor of the house area. It’s also necessary to consider the lifestyle and the size of the intimates to see how many number of rooms and bathrooms needed, what kind of style and design of the vivacious room, kitchen and dining room and how much aerate is needed for each of them. You after that habit to find the number of your vehicles for you to plan well how much big your garage should be. It’s best to discuss these details in imitation of your relations to make definite that your supplementary house will meet your adequate of living.

floorplans oak creek homes from oak creek modular home floor plans
floorplans photos oak creek manufactured homes from oak creek modular home floor plans
oak creek mobile homes floor plans from oak creek modular home floor plans
There are lots of ways to get hold of a desired home scheme for your other house. You can search it through the internet and pick from various websites that feature display homes following their corresponding house design plans. Searching for some examples of house plans can be an efficient, intellectual and fast habit of getting and refining ideas in planning and making your own one.
Certainly, a house plan is critical in building a house. It helps you visualize how the house should see behind similar to it’s fully finished. Seeing the overall layout and home design will create you clear that the architect has met your true requirements upon its structure, features, designs, styles and every new important details in building your house. It with gives the house builder a good overview upon its house design and guides him all the pretentiousness through the entire project. correspondingly it’s imperative to not be rush in making a house plan to ensure that all your requirements are met and to avoid mistakes. Ideally, preparing a home scheme should receive several weeks and obsession a lot of a breath of fresh air similar to your architect or house builder. function this gives you a desirability that your hew home is built safe and moreover assures you its mood and excellence.

oak creek floor plans for manufactured homes san antonio from oak creek modular home floor plans
oak creek homes floor plans from oak creek modular home floor plans
oak creek homes double wides san antonio from oak creek modular home floor plans
Here you are at our website, article above published by plougonver.com. At this time we are delighted to announce that we have found an incredibly interesting content to be discussed. that is, Oak Creek Modular Home Floor Plans. Many individuals attempting to find specifics of Oak Creek Modular Home Floor Plans and certainly one of these is you, is not it?




















