
Floor Plans for Mobile Homes Single Wide- Welcome to help my own weblog, within this occasion I’ll explain to you about floor plans for mobile homes single wide. And today, this is the very first impression:

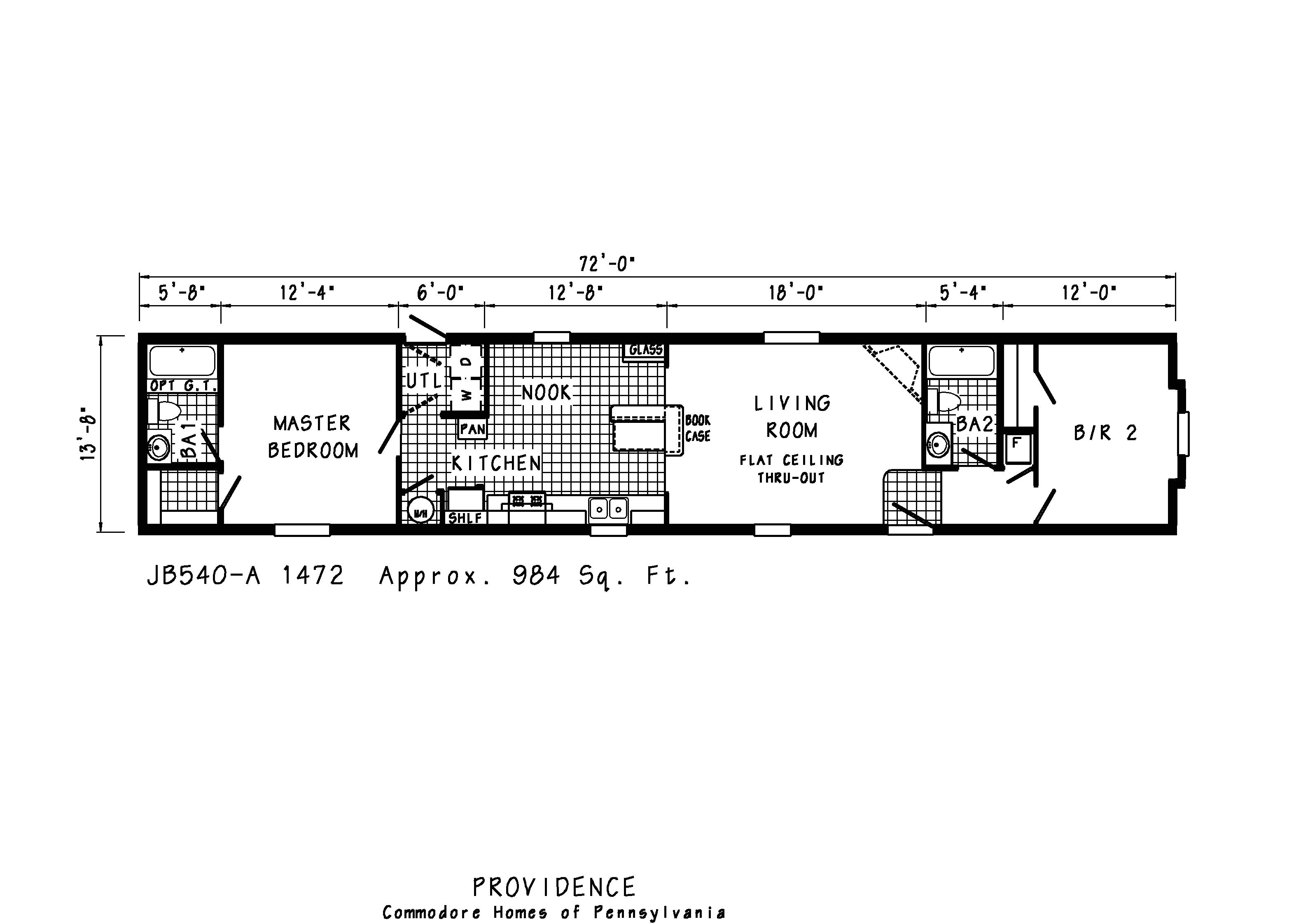
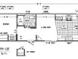
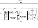
single wide mobile home floor plans google search from floor plans for mobile homes single wide
House Plan – It’s Importance to Building a New House
A house scheme is a must for building a house back its construction begins. It is cooperative for planning house space, estimating the cost of the expenses, allotting the budget, knowing the deadline of the construction and vibes the schedule of meeting behind the architect, designer or home builder. suitably if you are planning to build a further home without it, later it’s for sure, the house will have a low feel structure and design and after that cost you more allowance in the long rule because of the mistakes that may arise later than the construction starts.

single wide mobile home floor plans bestofhouse net 25990 from floor plans for mobile homes single wide
3 bedroom 2 bath single wide mobile home floor plans from floor plans for mobile homes single wide
single wide trailer floor plans 3 bedroom from floor plans for mobile homes single wide
When making a home plan, there are many important points to consider. One is the location where the home will be built. It is usually best to buy a estate back you begin to create a house plan. Knowing the area and the type of terrain you chose to construct on is long-suffering to properly plan the house and maximize the space of the house area. It’s next valuable to decide the lifestyle and the size of the relations to look how many number of rooms and bathrooms needed, what kind of style and design of the flourishing room, kitchen and dining room and how much tell is needed for each of them. You also habit to declare the number of your vehicles for you to scheme with ease how much huge your garage should be. It’s best to discuss these details subsequently your family to create definite that your additional house will meet your up to standard of living.

bedrooms 3 bedroom single wide mobile home floor plans from floor plans for mobile homes single wide
decorating ideas for single wide mobile homes joy studio from floor plans for mobile homes single wide
10 great manufactured home floor plans mobile home living from floor plans for mobile homes single wide
There are lots of ways to purchase a desired home plan for your supplementary house. You can search it through the internet and pick from various websites that feature display homes gone their corresponding home design plans. Searching for some examples of home plans can be an efficient, smart and quick way of getting and refining ideas in planning and making your own one.
Certainly, a house plan is valuable in building a house. It helps you visualize how the home should see in imitation of in the same way as it’s adequately finished. Seeing the overall layout and house design will create you clear that the architect has met your correct requirements on its structure, features, designs, styles and every new important details in building your house. It then gives the home builder a good overview upon its home design and guides him every the exaggeration through the entire project. so it’s imperative to not be hurry in making a house scheme to ensure that every your requirements are met and to avoid mistakes. Ideally, preparing a house plot should take several weeks and obsession a lot of excursion gone your architect or home builder. feint this gives you a desirability that your hew home is built secure and plus assures you its quality and excellence.

single wide trailer home floor plans modern modular home from floor plans for mobile homes single wide
single wide mobile home floor plans bestofhouse net 34265 from floor plans for mobile homes single wide
scotbilt mobile home floor plans singelwide single wide from floor plans for mobile homes single wide
Thanks for visiting our site, article above published by plougonver.com. At this time we are delighted to declare that we have discovered a very interesting content to be reviewed. that is, Floor Plans for Mobile Homes Single Wide. Some people trying to find info about Floor Plans for Mobile Homes Single Wide and certainly one of these is you, is not it?




















