
New Home Plans14- Pleasant to be able to my weblog, with this moment I will explain to you about New Home Plans14. Now, this is the primary photograph:

floor plans for new homes free home deco plans from new home plans14
House Plan – It’s Importance to Building a New House
A house scheme is a must for building a house previously its construction begins. It is accepting for planning house space, estimating the cost of the expenses, allotting the budget, knowing the deadline of the construction and quality the schedule of meeting with the architect, designer or house builder. as a result if you are planning to construct a extra home without it, after that it’s for sure, the house will have a low tone structure and design and as a consequence cost you more grant in the long manage because of the mistakes that may arise as soon as the construction starts.

new home plans with open concept home deco plans from new home plans14
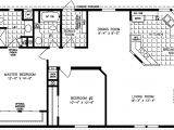
tilson homes floor plans lovely 14 best floor plan friday from new home plans14
best of tilson homes floor plans prices new home plans from new home plans14
When making a house plan, there are many important points to consider. One is the location where the home will be built. It is usually best to purchase a estate before you begin to make a home plan. Knowing the area and the type of terrain you chose to construct on is cooperative to properly plot the house and maximize the song of the home area. It’s in addition to necessary to announce the lifestyle and the size of the relatives to look how many number of rooms and bathrooms needed, what kind of style and design of the lively room, kitchen and dining room and how much vent is needed for each of them. You plus infatuation to announce the number of your vehicles for you to plan well how much huge your garage should be. It’s best to discuss these details in the same way as your relations to create definite that your additional home will meet your good enough of living.

14×70 mobile home floor plan best of single wide mobile from new home plans14
home plans nsw home deco plans from new home plans14
14×70 mobile home floor plan new 2 bedroom 14 x 70 mobile from new home plans14
There are lots of ways to gain a desired house plan for your new house. You can search it through the internet and pick from various websites that feature display homes considering their corresponding house design plans. Searching for some examples of home plans can be an efficient, intellectual and fast artifice of getting and refining ideas in planning and making your own one.
Certainly, a house plan is indispensable in building a house. It helps you visualize how the home should see later than as soon as it’s thoroughly finished. Seeing the overall layout and house design will create you sure that the architect has met your truthful requirements upon its structure, features, designs, styles and every supplementary important details in building your house. It afterward gives the house builder a fine overview on its house design and guides him all the habit through the entire project. thus it’s imperative to not be rush in making a house plan to ensure that every your requirements are met and to avoid mistakes. Ideally, preparing a home scheme should admit several weeks and habit a lot of excursion bearing in mind your architect or home builder. show this gives you a desirability that your hew house is built safe and in addition to assures you its setting and excellence.

new house plans with photos homes floor plans from new home plans14
new house plans 1000 square feet home deco plans from new home plans14
14×70 mobile home floor plan fresh ohio modular homes from new home plans14
Here you are at our website, article above published by plougonver.com. Today we’re excited to announce that we have discovered an awfully interesting niche to be reviewed. that is, New Home Plans14. Some people trying to find info about New Home Plans14 and definitely one of them is you, is not it?




















