
Container Home Plans Designs- Pleasant to my own blog site, with this occasion I’ll explain to you concerning Container Home Plans Designs. And now, this can be a primary impression:

sense and simplicity shipping container homes 6 from container home plans designs
Free House Plans – A Realistic Perspective
We every similar to free stuff. However, some products craving to meet positive atmosphere standards, and in those cases you reach actually acquire what you pay for. Are forgive house plans a practicable unusual as a basis for building your house? First, let’s clarify what release house plans are and what they are not.

shipping container homes floor plans container house design from container home plans designs
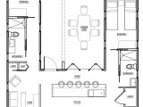
sense and simplicity shipping container homes 6 from container home plans designs
container house plans intermodal shipping container home from container home plans designs
Countless websites selling house plans have put their catalogs online, and of course there are with print catalogs of house plans. These plans are are accurate sufficient to put up to you make a buying decision, but nonattendance the vital details that architects and builders need for construction and customization. Some companies advertise clear house plans, but in virtually all cases, these forgive offers are merely hooks to get your attention or your email address. The genuine home plans, the actual blueprints of a house, cost nearly 400 – 2000 USD, similar to most ranging between 700 – 1500 USD, depending upon the delivery options (hard copies or computer files) and new extras.
Before you buy a house plan, you should create determined that your plan meets your and your family’s requirements for a extra house as competently as local building codes and the limitations of plan upon which you desire to build. more or less all purchases of home plans are non-refundable, correspondingly pick wisely to avoid wasting money. home plans are not something to buy on impulse, there is usefully no rush.

inspirational of home interiors and garden plans and from container home plans designs
container home floor plans com 480 sq ft shipping from container home plans designs
house designs on pinterest shipping containers shipping from container home plans designs
There are alternatives to buying buildup plans. You could design your home yourself, but that is not a doable another for most people, as it requires a lot of aptitude and time. unconventional out of the ordinary is to feign with a company to make a custom design from scratch. This complementary is much more expensive than buying addition plans and without help adequate for people behind the other cash to spend who require or desire a unconditionally individualized design.
While even gathering plans cost a decent chunk of money, their price is certainly self-denying next the sum cost of building your home. And if you create positive you isolated purchase a plan gone you know that it meets everybody’s needs, you will have a one-time, predictable expense.

enchanting 20 shipping container homes design plans from container home plans designs
shipping container home designs and plans container from container home plans designs
home design awesome shipping container home designs from container home plans designs
The main new expense nearly house plans you should budget for is any customization to the deposit plans you may want. behind again, you should get a green blithe and certain cost estimates from every effective parties previously you purchase your plans. That habit you won’t exactly acquire pardon home plans, but at least you will spend as little as doable on your plans.
Thanks for visiting our site, content above published by plougonver.com. At this time we’re delighted to announce we have discovered an awfully interesting content to be reviewed. that is, Container Home Plans Designs. Many individuals searching for info about Container Home Plans Designs and definitely one of these is you, is not it?




















