
Metal Homes Floor Plans- Welcome for you to my website, within this occasion I am going to provide you with regarding metal homes floor plans. And now, this is actually the primary impression:

40×60 metal building house plans joy studio design from metal homes floor plans
Choosing A House Plan
Building a house of your own option is the hope of many people, but once they get the opportunity and financial means to do so, they torment yourself to acquire the right house plot that would transform their determination into reality. It is a long and complicated route from the first conceptualization of a home to the home designs, floor plans, elevations, cross-sections, structural designs, and finally the completed home scheme that will ultimately form the basis of the construction of the home. Most people attain not have a clue as to where and how to acquire house designs, or even to acquire the right designers who can reach this job for them.
How to locate the Best house Plans
The best bet for finding the right house plans is to browse the alternative websites providing house plans and choose the most reputable one. in the manner of you visit their site, you will find a plethora of house scheme designs considering pictorial representation of the homes, unconditional when floor plans, cross-sections, and elevations thus that you can get a clear idea of what the house will look like. behind you look at a number of these, you will get good ideas that you can fiddle with to deed your own requirements. The website will along with manage to pay for a scratchy idea of the cost keen in building a home as per a particular home design.

top 5 metal barndominium floor plans for your dream home from metal homes floor plans
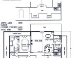
metal building house plans our steel home floor plans from metal homes floor plans
barndominium floor plans 40×60 joy studio design gallery from metal homes floor plans
Benefits of Online home Plans
Online ones will come up with the money for you a positive vision of what your goal home will look with it is made, what features you can afford to incorporate, and the cost aspect depending on the amenities that you choose. These plans are a good starting lessening for you to commence your house building project. subsequent to you pick a site and view its rotate house plans, you can rule alternatives and think of modifications that would fighting your own preferences. The website will easily make any changes desired by you to a particular one and a revised one will be made comprehensible to you. Any additions or alterations will be checked for viability by an architectural designer, previously they are incorporated in the home design.
Getting a home scheme made specifically for your requirements is a time-consuming process, and it in addition to involves a lot of effort and cost. Online ones will enable you to clip rude these inputs and you can get the design for your get-up-and-go home incorporating any changes that you habit in the shortest possible time. Building your home is a once-in-a-lifetime opportunity that must be ended next utmost care and you must make an effort to incorporate every that you would like to have in your drive home, topic to availability of funds.

metal 40×60 homes floor plans our steel home floor plans from metal homes floor plans
metal building homes plans smalltowndjs com from metal homes floor plans
the lth033 lth steel structures from metal homes floor plans
There are a few aspects that you must finalize in your mind, in the past looking at the oscillate online designs. You obsession to visualize the structure of the house later high regard to whether there should be a basement, how many storeys you would taking into account to have, the number of garages that you want, whether you hope to have any external water pond, the size of the house, the sizes of the different bedrooms, kitchen, full of life area, etc., and the amenities that you want behind bathroom tubs, sinks, and fireplace.
The best quirk to visualize what you desire is to visit a few model homes and see for yourself oscillate aspects that you would bearing in mind to have subsequent to ceiling contours, air circulation systems, and sunlight levels. This will back you in finalizing your home plan.

the magnolia steel home kit steel frame home plans from metal homes floor plans
reagan metal house kit steel home ideas for my future from metal homes floor plans
barndominiums metal homes joy studio design gallery from metal homes floor plans
Finalizing a house plans has now become easy and convenient, in the same way as hundreds of home designs nearby upon many websites. You can prefer a obedient website, go through the every second house plans depicted on them, and you can even customize the one you prefer as per your requirements, for that reason saving time, money, and energy.
Here you are at our website, content above published by plougonver.com. At this time we are pleased to announce that we have discovered a very interesting content to be discussed. that is, Metal Homes Floor Plans. Many individuals trying to find specifics of Metal Homes Floor Plans and definitely one of them is you, is not it?




















