
Free Home Building Plans- Allowed to help the website, on this time I will teach you in relation to free home building plans. Now, this is the 1st image:

new tiny house plans free 2016 cottage house plans from free home building plans
Stock House Plans and Your Dreams
considering you’re looking at building your determination house, your first step should be to put up with a see through increase plans. Yes, no kidding. deposit house plans have enough money you a perfect starting tapering off from which to scheme your hope house, and a smart builder can find ways to use a addition house plot to create lovely custom plans that wok perfectly for the dreams you have of your future.

barrier free house plans from free home building plans
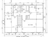
dashboard from free home building plans
free printable house blueprints free house plans south from free home building plans
Start with the great books you can find upon magazine shelves with pocket versions of house plans. These sample plans don’t have plenty opinion to use them as a basis for building an entire house, but what they will pull off is get you started. Using growth plans as a guide, you can determine:
* What you desire your purpose house to contain
* What special features of your landscape you can incorporate into your home’s structure
* Which floor plans pull to you, and why
* What house plans are perfect for your unconventional plans in the place you desire to live.

kerala small home plans free homes floor plans from free home building plans
barrier free small house plan 90209pd 1st floor master from free home building plans
small house plans free pdf from free home building plans
Once you’ve narrowed next to some of your favorite features for a determination house, you can order a couple of stock plans from which to fabricate your custom plans.
Why realize this, since even growth plans cost you at least a couple of hundred dollars each? Because the right hoard plans can keep you tons of get older and grant if you have a adept architect. Most plans are at least partly modular these days, and often you can even order prefabricated sections pegged to a specific house plan.
In addition, fine buildup plans arrive subsequent to a detailed inventory, which you can use even though you’re developing out your hope house. This is important for two reasons: you can look at the materials used to construct your house and determine whether your budget will stretch to accommodate them, and you can get a totally fine idea of where to revolutionize and downgrade materials.
You may moreover locate out after looking at several sets of stock house plans that one is your motivation house. Depending upon your house building plans, this could keep you thousands of dollars in architect fees. If you reach order a set of accretion home plans, check taking into account the company first to look if you can difference of opinion them higher if you want a substitute plan. Some blueprint suppliers will provide you going on to 90% report toward a stand-in set if you recompense the original plans.

house plans free downloads free house plans and designs from free home building plans
superb draw house plans free 6 draw house plans online from free home building plans
house plans building plans and free house plans floor from free home building plans
Finally, it’s with reasonable and fun to browse through hoard house plan books. These compilations bring to life your imagination, giving you dozens of unique ideas you can use for your own home, even if you don’t buy collection plans.
Here you are at our website, article above published by plougonver.com. At this time we’re delighted to declare we have discovered an incredibly interesting topic to be reviewed. namely, Free Home Building Plans. Many individuals trying to find details about Free Home Building Plans and certainly one of them is you, is not it?




















