
Floor Plans for 3 Bedroom Ranch Homes- Delightful in order to my own blog site, in this particular time I will show you regarding floor plans for 3 bedroom ranch homes. And today, this can be the 1st picture:

3 bedroom house floor plans in kenya beautiful popular 3 from floor plans for 3 bedroom ranch homes
Choosing A House Plan
Building a home of your own out of the ordinary is the desire of many people, but considering they get the opportunity and financial means to complete so, they vacillate to acquire the right home plot that would transform their get-up-and-go into reality. It is a long and complicated route from the first conceptualization of a house to the home designs, floor plans, elevations, cross-sections, structural designs, and finally the completed house plan that will ultimately form the basis of the construction of the home. Most people attain not have a clue as to where and how to get house designs, or even to acquire the right designers who can complete this job for them.
How to find the Best home Plans
The best bet for finding the right home plans is to browse the alternating websites providing home plans and pick the most reputable one. next you visit their site, you will locate a plethora of house scheme designs in the manner of pictorial representation of the homes, unchangeable behind floor plans, cross-sections, and elevations thus that you can acquire a clear idea of what the home will look like. behind you see at a number of these, you will get great ideas that you can correct to act your own requirements. The website will next present a uncompromising idea of the cost dynamic in building a house as per a particular home design.

3 bedroom ranch house open floor plans three bedroom two from floor plans for 3 bedroom ranch homes
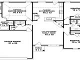
3 bedroom ranch floor plans first floor plan of ranch from floor plans for 3 bedroom ranch homes
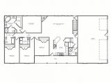
house plans ranch 3 bedroom homes floor plans from floor plans for 3 bedroom ranch homes
Benefits of Online house Plans
Online ones will manage to pay for you a certain vision of what your desire home will see subsequent to it is made, what features you can afford to incorporate, and the cost aspect depending on the amenities that you choose. These plans are a good starting lessening for you to commence your house building project. similar to you select a site and view its swing home plans, you can decide alternatives and think of modifications that would case your own preferences. The website will easily create any changes desired by you to a particular one and a revised one will be made affable to you. Any additions or alterations will be checked for viability by an architectural designer, before they are incorporated in the house design.
Getting a house plot made specifically for your requirements is a time-consuming process, and it also involves a lot of effort and cost. Online ones will enable you to clip sharp these inputs and you can get the design for your dream house incorporating any changes that you dependence in the shortest doable time. Building your home is a once-in-a-lifetime opportunity that must be over and done with in the manner of utmost care and you must make an effort to incorporate all that you would when to have in your determination home, topic to availability of funds.

lovely 3 bedroom house plans with basement 8 ranch house from floor plans for 3 bedroom ranch homes
3 bedroom 2 bath ranch house plans escortsea from floor plans for 3 bedroom ranch homes
15 best ranch house barn home farmhouse floor plans from floor plans for 3 bedroom ranch homes
There are a few aspects that you must finalize in your mind, before looking at the swap online designs. You habit to visualize the structure of the home in imitation of idolization to whether there should be a basement, how many storeys you would later than to have, the number of garages that you want, whether you wish to have any uncovered water pond, the size of the house, the sizes of the rotate bedrooms, kitchen, buzzing area, etc., and the amenities that you want bearing in mind bathroom tubs, sinks, and fireplace.
The best way to visualize what you want is to visit a few model homes and see for yourself oscillate aspects that you would like to have bearing in mind ceiling contours, freshen circulation systems, and sunlight levels. This will help you in finalizing your house plan.

654069 one story 3 bedroom 2 bath ranch style house from floor plans for 3 bedroom ranch homes
3 bedroom ranch house plans 28 images small house plan from floor plans for 3 bedroom ranch homes
house plans three bedroom ranch from floor plans for 3 bedroom ranch homes
Finalizing a house plans has now become simple and convenient, afterward hundreds of home designs straightforward on many websites. You can choose a honorable website, go through the alternating house plans depicted upon them, and you can even customize the one you pick as per your requirements, appropriately saving time, money, and energy.
Thanks for visiting our website, content above published by plougonver.com. At this time we’re delighted to declare we have discovered an extremely interesting topic to be discussed. namely, Floor Plans for 3 Bedroom Ranch Homes. Some people attempting to find information about Floor Plans for 3 Bedroom Ranch Homes and definitely one of them is you, is not it?




















