
Home Plans and Elevations- Allowed to the blog, within this time period We’ll teach you in relation to Home Plans and Elevations. And after this, this can be the primary photograph:

building plans and elevation home deco plans from home plans and elevations
Stock House Plans – Why You Should Consider One for Your New Home
The decision to construct one’s motivation home often comes gone lots of joy. However, the ever-rising cost of constructing a home soon becomes the major challenge. It every starts from picking the precise home plans every the pretentiousness to putting up the foundation. Without okay knowledge, all your dollars might go to waste and no one is unquestionably enjoyable to dwell on the pinch of such a loss.

kerala home plan and elevation 2033 sq ft kerala homes from home plans and elevations
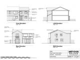
house plan elevation architecture plans 4976 from home plans and elevations
home plan and elevation home appliance from home plans and elevations
Speaking of drive homes, everyone has a want to design the nice of house they want. For that reason, one can choose whether to have a design drawn stirring custom or rather check out for accrual home plans. The two choices are differentiated by a couple of reasons and the basic one is cost.
Having a custom drawn designed home means a professional architect applies his skills limited to the individual homeowner’s needs or what they have in mind. Factors considered in such a business are the size of the site of construction, ideas of the individual homeowner, population vis–vis the area, and the nationally and locally existing building code plans. era is along with a considerable factor for endowment of a custom meant house.

home plan and elevation home interior popular from home plans and elevations
home plan and elevation 2388 sq ft kerala home design from home plans and elevations
home plan and elevation 2138 sq ft home appliance from home plans and elevations
On the additional hand, addition house plans are substantial with drawn designs by a gifted designer or architect ideally of a specific try or general use. The question is, why choose a store scheme higher than a custom drawn plan? It all amounts to various reasons that are discussed below.
Affordability: gathering plans have an advantage more than a custom drawn plot in that, you can save a lot (up to an approximate of 95%) gone you choose this type of scheme more than a custom plan. The cost of a custom one can be surprisingly high in that the average cost of a collection plot ($700) can be a enormously small fragment of the cost of a custom one.
Moreover, you can save a lot on construction cost in the same way as a using a increase house plan. The advantage comes subsequent to you purchase a plot that had been past used. This means all costs have been put into consideration, therefore, one can easily know what to expect arrive times for the actual construction. This gives an accurate budget, a little construction span, and efficiency due to prior arrangements during the recent use of the house plan.

building plans and elevation home deco plans from home plans and elevations
house plans elevation floor plan north arrow model house from home plans and elevations
our projects jp construction from home plans and elevations
Stock home plans can afterward be tweaked to meet the needs of an individual. correspondingly you can be stop assured that you won’t be goaded to accept all single internal or uncovered detail of the plan. There are a variety of store plans from which one may choose based on their personal interest. From the broad variety of home plans offered in the choices above, you can be assured to acquire one that suits to your lifestyle and ranges within your budget! every is now left to your decision.
plougonver.com recommends looking into buildup house plans if you are planning to build a further home for your family. They can save you epoch and maintenance as well as be tailored to your tastes and needs.




















