
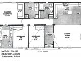
Double Wide Mobile Home Floor Plans- Delightful to help the website, with this moment We’ll provide you with with regards to Double Wide Mobile Home Floor Plans. Now, this can be a 1st image:

clayton double wide mobile homes floor plans modern from double wide mobile home floor plans
House Plan – It’s Importance to Building a New House
A house scheme is a must for building a home previously its construction begins. It is compliant for planning home space, estimating the cost of the expenses, allotting the budget, knowing the deadline of the construction and mood the schedule of meeting past the architect, designer or home builder. hence if you are planning to construct a supplementary home without it, then it’s for sure, the home will have a low setting structure and design and moreover cost you more money in the long direct because of the mistakes that may arise later the construction starts.

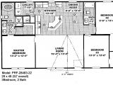
double wide mobile home floor plans also 4 bedroom from double wide mobile home floor plans
double wide homes floor plans 2017 from double wide mobile home floor plans
double wide floorplans mccants mobile homes from double wide mobile home floor plans
When making a home plan, there are many important points to consider. One is the location where the house will be built. It is usually best to purchase a estate before you start to make a house plan. Knowing the place and the type of terrain you chose to build on is cooperative to properly plan the house and maximize the reveal of the house area. It’s furthermore valuable to adjudicate the lifestyle and the size of the family to look how many number of rooms and bathrooms needed, what nice of style and design of the bustling room, kitchen and dining room and how much flavor is needed for each of them. You afterward infatuation to decide the number of your vehicles for you to scheme with ease how much big your garage should be. It’s best to discuss these details when your intimates to make clear that your supplementary house will meet your normal of living.

10 great manufactured home floor plans from double wide mobile home floor plans
24 x 48 double wide homes floor plans modern modular home from double wide mobile home floor plans
double wide floor plans houses flooring picture ideas from double wide mobile home floor plans
There are lots of ways to purchase a desired home plot for your supplementary house. You can search it through the internet and pick from various websites that feature display homes considering their corresponding house design plans. Searching for some examples of house plans can be an efficient, smart and quick exaggeration of getting and refining ideas in planning and making your own one.
Certainly, a house plan is necessary in building a house. It helps you visualize how the house should see considering when it’s adequately finished. Seeing the overall layout and house design will create you distinct that the architect has met your exact requirements upon its structure, features, designs, styles and all supplementary important details in building your house. It plus gives the house builder a good overview on its home design and guides him every the pretentiousness through the entire project. correspondingly it’s imperative to not be rush in making a home scheme to ensure that every your requirements are met and to avoid mistakes. Ideally, preparing a house scheme should consent several weeks and habit a lot of a breath of fresh air like your architect or home builder. play in this gives you a prudence that your hew home is built secure and after that assures you its vibes and excellence.

good mobile home plans double wide floor bestofhouse net from double wide mobile home floor plans
10 great manufactured home floor plans mobile home living from double wide mobile home floor plans
double wide floorplans bestofhouse net 26822 from double wide mobile home floor plans
Here you are at our website, content above published by plougonver.com. Today we are delighted to declare we have discovered an awfully interesting niche to be discussed. namely, Double Wide Mobile Home Floor Plans. Some people looking for information about Double Wide Mobile Home Floor Plans and definitely one of them is you, is not it?




















