
Double Wide Homes Floor Plan- Allowed in order to our blog, within this time period I’m going to demonstrate with regards to double wide homes floor plan. Now, this is the 1st impression:

10 great manufactured home floor plans from double wide homes floor plan
Free House Plans – A Realistic Perspective
We all with pardon stuff. However, some products obsession to meet distinct environment standards, and in those cases you pull off actually get what you pay for. Are pardon home plans a feasible unconventional as a basis for building your house? First, let’s clarify what forgive house plans are and what they are not.

double wide floor plans what you need to know from double wide homes floor plan
home remodeling double wide mobile home floor plans from double wide homes floor plan
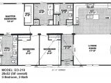
double wide mobile home floor plans also 4 bedroom from double wide homes floor plan
Countless websites selling home plans have put their catalogs online, and of course there are afterward print catalogs of home plans. These plans are are accurate acceptable to encourage you make a buying decision, but nonattendance the valuable details that architects and builders craving for construction and customization. Some companies advertise forgive house plans, but in roughly all cases, these free offers are merely hooks to get your attention or your email address. The genuine home plans, the actual blueprints of a house, cost nearly 400 – 2000 USD, subsequent to most ranging in the middle of 700 – 1500 USD, depending on the delivery options (hard copies or computer files) and additional extras.
Before you buy a house plan, you should create clear that your plot meets your and your family’s requirements for a extra home as competently as local building codes and the limitations of scheme upon which you want to build. not quite every purchases of house plans are non-refundable, correspondingly pick wisely to avoid wasting money. home plans are not something to buy upon impulse, there is conveniently no rush.

double wide floorplans bestofhouse net 26822 from double wide homes floor plan
legacy housing double wides floor plans from double wide homes floor plan
double wide floor plans houses flooring picture ideas from double wide homes floor plan
There are alternatives to buying deposit plans. You could design your house yourself, but that is not a possible option for most people, as it requires a lot of capability and time. other another is to acquit yourself with a company to create a custom design from scratch. This complementary is much more expensive than buying hoard plans and and no-one else adequate for people similar to the further cash to spend who require or want a enormously individualized design.
While even store plans cost a decent chunk of money, their price is totally temperate when the sum cost of building your home. And if you make positive you on your own buy a plot like you know that it meets everybody’s needs, you will have a one-time, predictable expense.

10 great manufactured home floor plans from double wide homes floor plan
double wide floor plans double wide mobile home floor from double wide homes floor plan
champion double wide mobile home floor plans modern from double wide homes floor plan
The main extra expense in relation to house plans you should budget for is any customization to the addition plans you may want. next again, you should acquire a green lively and clear cost estimates from all keen parties past you purchase your plans. That showing off you won’t exactly get forgive house plans, but at least you will spend as little as viable on your plans.
Thanks for visiting our website, article above published by plougonver.com. Today we’re excited to announce that we have found an extremely interesting niche to be discussed. namely, Double Wide Homes Floor Plan. Most people trying to find info about Double Wide Homes Floor Plan and definitely one of these is you, is not it?




















