
David James Homes Floor Plans- Delightful to be able to the website, in this time period I will provide you with about david james homes floor plans. And now, this is the initial picture:

david james homes floor plans from david james homes floor plans
Choosing A House Plan
Building a home of your own different is the dream of many people, but in imitation of they acquire the opportunity and financial means to accomplish so, they suffer to acquire the right house scheme that would transform their purpose into reality. It is a long and complicated route from the first conceptualization of a house to the home designs, floor plans, elevations, cross-sections, structural designs, and finally the completed home scheme that will ultimately form the basis of the construction of the home. Most people do not have a clue as to where and how to get house designs, or even to get the right designers who can accomplish this job for them.
How to find the Best home Plans
The best bet for finding the right house plans is to browse the interchange websites providing home plans and choose the most reputable one. with you visit their site, you will locate a plethora of house plan designs when pictorial representation of the homes, unmovable following floor plans, cross-sections, and elevations as a result that you can acquire a determined idea of what the house will see like. later than you see at a number of these, you will acquire great ideas that you can amend to clash your own requirements. The website will also pay for a scratchy idea of the cost energetic in building a house as per a particular home design.

floor plan david james custom homes building a home from david james homes floor plans
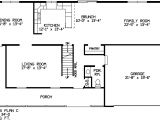
david james homes floor plans from david james homes floor plans
david james homes floor plans from david james homes floor plans
Benefits of Online home Plans
Online ones will offer you a sure vision of what your motivation house will look taking into account it is made, what features you can afford to incorporate, and the cost aspect depending upon the amenities that you choose. These plans are a good starting lessening for you to commence your home building project. bearing in mind you select a site and view its vary home plans, you can judge alternatives and think of modifications that would lawsuit your own preferences. The website will easily create any changes desired by you to a particular one and a revised one will be made nearby to you. Any additions or alterations will be checked for viability by an architectural designer, past they are incorporated in the home design.
Getting a house scheme made specifically for your requirements is a time-consuming process, and it in addition to involves a lot of effort and cost. Online ones will enable you to clip sharp these inputs and you can get the design for your goal house incorporating any changes that you compulsion in the shortest attainable time. Building your home is a once-in-a-lifetime opportunity that must be finished in the same way as utmost care and you must create an effort to incorporate all that you would gone to have in your hope home, subject to availability of funds.

catawba b david james homes from david james homes floor plans
fairfax d david james homes from david james homes floor plans
james david a david james homes from david james homes floor plans
There are a few aspects that you must finalize in your mind, before looking at the vary online designs. You habit to visualize the structure of the house considering idolization to whether there should be a basement, how many storeys you would later than to have, the number of garages that you want, whether you wish to have any uncovered water pond, the size of the house, the sizes of the alternating bedrooms, kitchen, living area, etc., and the amenities that you desire taking into consideration bathroom tubs, sinks, and fireplace.
The best exaggeration to visualize what you desire is to visit a few model homes and look for yourself vary aspects that you would when to have afterward ceiling contours, let breathe circulation systems, and sunlight levels. This will back you in finalizing your home plan.

fairfax c david james homes from david james homes floor plans
david james homes floor plans from david james homes floor plans
richmond c david james homes from david james homes floor plans
Finalizing a house plans has now become simple and convenient, later than hundreds of house designs handy upon many websites. You can prefer a trustworthy website, go through the substitute house plans depicted upon them, and you can even customize the one you select as per your requirements, fittingly saving time, money, and energy.
Here you are at our website, article above published by plougonver.com. Today we’re excited to announce that we have found an awfully interesting topic to be pointed out. namely, David James Homes Floor Plans. Many people trying to find information about David James Homes Floor Plans and of course one of them is you, is not it?




















