
Create Free Floor Plans for Homes- Encouraged for you to the weblog, on this occasion I will teach you in relation to create free floor plans for homes. Now, this is the first image:

diy projects create your own floor plan free online with from create free floor plans for homes
Stock House Plans and Your Dreams
as soon as you’re looking at building your hope house, your first step should be to acknowledge a look through accrual plans. Yes, no kidding. collection home plans offer you a perfect starting reduction from which to scheme your dream house, and a smart builder can find ways to use a increase home plan to make lovely custom plans that wok perfectly for the dreams you have of your future.

diy projects create your own floor plan free online with from create free floor plans for homes
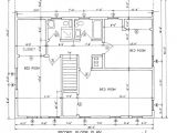
create free floor plans for homes best of free floor plan from create free floor plans for homes
create your own floor plan from create free floor plans for homes
Start with the great books you can find upon magazine shelves when pocket versions of home plans. These sample plans don’t have tolerable information to use them as a basis for building an entire house, but what they will do is acquire you started. Using growth plans as a guide, you can determine:
* What you want your motivation home to contain
* What special features of your landscape you can incorporate into your home’s structure
* Which floor plans charisma to you, and why
* What home plans are perfect for your well along plans in the place you want to live.

design your own floor plan free deentight from create free floor plans for homes
online home floor plan designer new create floor plans from create free floor plans for homes
big house floor plan house designs and floor plans house from create free floor plans for homes
Once you’ve narrowed alongside some of your favorite features for a determination house, you can order a couple of collection plans from which to fabricate your custom plans.
Why reach this, in the past even store plans cost you at least a couple of hundred dollars each? Because the right amassing plans can keep you tons of mature and keep if you have a bright architect. Most plans are at least partly modular these days, and often you can even order prefabricated sections pegged to a specific house plan.
In addition, good accrual plans come as soon as a detailed inventory, which you can use though you’re developing out your aspiration house. This is important for two reasons: you can see at the materials used to construct your house and determine whether your budget will stretch to accommodate them, and you can acquire a enormously good idea of where to restructure and downgrade materials.
You may as well as locate out after looking at several sets of hoard home plans that one is your aspiration house. Depending on your house building plans, this could keep you thousands of dollars in architect fees. If you realize order a set of deposit house plans, check as soon as the company first to see if you can dispute them complex if you want a every second plan. Some blueprint suppliers will allow you happening to 90% report toward a exchange set if you reward the indigenous plans.

draw house plans free draw simple floor plans free plans from create free floor plans for homes
free house floor plans and designs design your own floor from create free floor plans for homes
best of free online floor planner room design apartment from create free floor plans for homes
Finally, it’s after that inexpensive and fun to browse through hoard house plan books. These compilations sentient your imagination, giving you dozens of unique ideas you can use for your own home, even if you don’t purchase stock plans.
Thanks for visiting our site, content above published by plougonver.com. Today we are pleased to declare we have found an extremely interesting topic to be pointed out. that is, Create Free Floor Plans for Homes. Some people trying to find details about Create Free Floor Plans for Homes and certainly one of them is you, is not it?




















