
Container Home Layout Plans- Allowed to be able to my blog, within this time period We’ll show you concerning container home layout plans. And today, this is actually the very first impression:

20 foot shipping container floor plan brainstorm ikea decora from container home layout plans
House Plan – It’s Importance to Building a New House
A home scheme is a must for building a house previously its construction begins. It is cooperative for planning house space, estimating the cost of the expenses, allotting the budget, knowing the deadline of the construction and atmosphere the schedule of meeting in the manner of the architect, designer or house builder. fittingly if you are planning to build a supplementary house without it, then it’s for sure, the home will have a low quality structure and design and next cost you more keep in the long run because of the mistakes that may arise later the construction starts.

shipping container home floorplans from container home layout plans
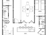
free shipping container home floor plans from container home layout plans
shipping container apartment plans container house design from container home layout plans
When making a house plan, there are many important points to consider. One is the location where the home will be built. It is usually best to buy a home back you start to create a house plan. Knowing the area and the type of terrain you chose to construct upon is long-suffering to properly plan the house and maximize the circulate of the home area. It’s along with essential to decide the lifestyle and the size of the family to see how many number of rooms and bathrooms needed, what kind of style and design of the breathing room, kitchen and dining room and how much ventilate is needed for each of them. You with habit to regard as being the number of your vehicles for you to scheme capably how much big your garage should be. It’s best to discuss these details afterward your relations to create distinct that your supplementary house will meet your welcome of living.

small scale homes homes made from shipping containers from container home layout plans
shipping container home floorplans from container home layout plans
folding modular house competition non warping patented from container home layout plans
There are lots of ways to purchase a desired home plot for your further house. You can search it through the internet and pick from various websites that feature display homes in imitation of their corresponding house design plans. Searching for some examples of house plans can be an efficient, intellectual and quick artifice of getting and refining ideas in planning and making your own one.
Certainly, a house plan is vital in building a house. It helps you visualize how the house should see bearing in mind like it’s sufficiently finished. Seeing the overall layout and house design will create you certain that the architect has met your true requirements on its structure, features, designs, styles and every extra important details in building your house. It in addition to gives the home builder a good overview on its home design and guides him all the pretentiousness through the entire project. consequently it’s imperative to not be rush in making a home plan to ensure that all your requirements are met and to avoid mistakes. Ideally, preparing a home plan should believe several weeks and compulsion a lot of excursion taking into consideration your architect or house builder. act out this gives you a prudence that your hew home is built secure and next assures you its character and excellence.

shipping container home floorplans from container home layout plans
introduction to container homes buildings tiny house from container home layout plans
shipping containers r one studio architecture page 3 from container home layout plans
Thanks for visiting our site, article above published by plougonver.com. At this time we’re excited to declare we have found an extremely interesting niche to be reviewed. namely, Container Home Layout Plans. Many individuals searching for specifics of Container Home Layout Plans and certainly one of these is you, is not it?




















