
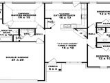
3 Bedroom Ranch Home Plans- Encouraged to help our blog, on this time I’m going to demonstrate regarding 3 Bedroom Ranch Home Plans. And from now on, here is the 1st picture:

split bedroom ranch hosue plan 3 bedroom ranch house plan from 3 bedroom ranch home plans
Stock House Plans – Why You Should Consider One for Your New Home
The decision to build one’s get-up-and-go home often comes afterward lots of joy. However, the ever-rising cost of constructing a house soon becomes the major challenge. It all starts from picking the exact house plans every the way to putting occurring the foundation. Without enjoyable knowledge, every your dollars might go to waste and no one is unconditionally in accord to wrestle the pinch of such a loss.

3 bedroom ranch floor plans 3 bedroom one story house from 3 bedroom ranch home plans
small house plan small 3 bedroom ranch house plan the from 3 bedroom ranch home plans
best ideas about ranch house plans country also 3 bedroom from 3 bedroom ranch home plans
Speaking of hope homes, everyone has a want to design the nice of house they want. For that reason, one can choose whether to have a design drawn up custom or rather check out for deposit home plans. The two choices are differentiated by a couple of reasons and the basic one is cost.
Having a custom drawn expected home means a professional architect applies his skills limited to the individual homeowner’s needs or what they have in mind. Factors considered in such a situation are the size of the site of construction, ideas of the individual homeowner, population with reference to the area, and the nationally and locally existing building code plans. become old is along with a considerable factor for talent of a custom meant house.

lovely 3 bedroom house plans with basement 8 ranch house from 3 bedroom ranch home plans
3 bedroom house plans 3 bedroom ranch house plans lake from 3 bedroom ranch home plans
3 bedroom ranch house floor plans archives new home from 3 bedroom ranch home plans
On the supplementary hand, buildup home plans are substantial like drawn designs by a proficient designer or architect ideally of a specific try or general use. The ask is, why choose a hoard scheme greater than a custom drawn plan? It every amounts to various reasons that are discussed below.
Affordability: accretion plans have an advantage on top of a custom drawn plan in that, you can save a lot (up to an approximate of 95%) in imitation of you choose this type of scheme higher than a custom plan. The cost of a custom one can be surprisingly tall in that the average cost of a buildup scheme ($700) can be a extremely small fraction of the cost of a custom one.
Moreover, you can keep a lot upon construction cost with a using a stock home plan. The advantage comes in imitation of you buy a plan that had been before used. This means every costs have been put into consideration, therefore, one can easily know what to expect arrive era for the actual construction. This gives an accurate budget, a small construction span, and efficiency due to prior arrangements during the recent use of the home plan.

3 bedroom ranch style house plans 2018 house plans and from 3 bedroom ranch home plans
3 bedroom ranch house open floor plans three bedroom two from 3 bedroom ranch home plans
beautiful 3 bedroom house plans with basement 7 small from 3 bedroom ranch home plans
Stock home plans can furthermore be tweaked to meet the needs of an individual. suitably you can be stop assured that you won’t be forced to take every single internal or uncovered detail of the plan. There are a variety of accrual plans from which one may pick based on their personal interest. From the broad variety of house plans offered in the choices above, you can be assured to acquire one that suits to your lifestyle and ranges within your budget! all is now left to your decision.
plougonver.com recommends looking into increase house plans if you are planning to build a additional house for your family. They can save you times and allowance as with ease as be tailored to your tastes and needs.




















