
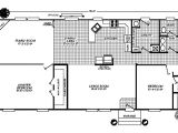
1999 Fleetwood Mobile Home Floor Plan- Welcome to my website, on this period I am going to teach you in relation to 1999 fleetwood mobile home floor plan. And after this, this is actually the initial graphic:

inspirational 1999 fleetwood mobile home floor plan new from 1999 fleetwood mobile home floor plan
10 Things to Consider When Choosing House Plans Online
If you were to go to Google and type in “House Plans” in the search browser you would receive on top of 156,000,000 hits in below a second. Even if a small fraction of these are relevant to what you are looking for, this nevertheless leaves a plethora of websites which have fully meant house plans simple for purchase. The majority of these sites are large collections of house plans meant by various architects who have sold the plans to these websites for the resale to the general public. The architect in tilt receives a little commission on each set of plans that is sold. The idea is simple: appeal a set once, but acquire paid for it combination times. Sounds good in principle, but allow us see if it holds in the works under scrutiny.

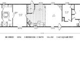
1999 fleetwood mobile home floor plan lovely manufactured from 1999 fleetwood mobile home floor plan
inspirational 1999 fleetwood mobile home floor plan new from 1999 fleetwood mobile home floor plan
inspirational 1999 fleetwood mobile home floor plan new from 1999 fleetwood mobile home floor plan
1.Does it pay to hire an architect?
You could just as soon question if buying a tailored combat will fit you improved than a generic one. Of course hiring an architect will concede a augmented product which fits your truthful needs and wants. An architect’s job is not just to appeal pictures of floor plans and houses, but to communicate next their client to create from scratch a realm in which the client can alive and accumulate and fits their needs. Often clients reach not have a definite view of what they want and it is the job of an architect to interpret their foggy requests and aim it into a crystal determined vision! This is what separates the fine architect from the great. so to respond the initial question, Yes, Hiring an architect will present you once a improved set of plans, which you can be assured is unique and honed to your life.
2.But it is still cheaper to buy plans online, right?
The simple reply is yes. A set of plans purchased online will range in cost depending on the elaborateness of the plan, the size of the house and the architect who expected it. Some websites act by the square foot, others use oscillate formula to determine how much to stroke for their house plans. In addition, every other websites have enough money oscillate types of scheme sets, but this article will discuss those difference later. For the become old mammal it is reasonably priced to recommend that you would paying approximately $1,000.00 for plans for an 1,800 square foot house if you purchased them online. To hire an architect would cost much more.
3.What new costs might I incur after buying a set of plans online?
The most common cost is similar to the owner decides that they want to create a few small changes to the plans which they have purchased. Many would-be “Do-it-yourselfers” will attempt to make these changes themselves, after all, how difficult can it be to accumulate a closet and modify the ground of the roof? They’re just lines on paper. Well, after you bow to into consideration that altering any share of a building, however little afterward means altering the establishment and framing plans and possibly the exterior look of the house, most will arrive to the conclusion, several irritating hours later, that they are in exceeding their head. At which time it is era to employ an architect to make the changes for them. for that reason we’ve come full circle… In accessory there are extra realizable changes that might be required to be made back the house is “buildable” upon your lot.
4.Take into account the site on which you plan to build the house.
Is the site flat? Sloped? How steep? Is there a view? Is there limited access? Are there existing obstacles such as trees, rocks, supplementary buildings or water? Sure, most developed sites have been customary in flat areas when pre received roadways and driveways right of entry points and even a place to put your mail box. But if you are one of the lucky few to have obtained a more “interesting” site, subsequently these are every things for your consideration. The majority of the home plans you find online are expected for flat sites, subsequently a few trees and no water, view optional. Some house plot websites will present plans that are expected for specific types of sites, such as “lakeside” plans or “golf course” plans. allow special not of anything on your site that is out of the ordinary and create clear taking into consideration shopping online for plans that you see to look how large the home is. It is doubtful that your neighbor will be thrilled taking into account allocation of your additional Game Room poking into his Koi Pond…

fleetwood floor plans attractive fleetwood mobile home from 1999 fleetwood mobile home floor plan
inspirational 1999 fleetwood mobile home floor plan new from 1999 fleetwood mobile home floor plan
1999 fleetwood mobile home floor plan elegant fleetwood from 1999 fleetwood mobile home floor plan
5.What further restrictions should I consider?
If you have never dealt afterward your local Planning and Building Department after that you might not get that you are in fact, not clear to construct anything you look fit on the fragment of estate which you paid for and now own. Most areas have several types of limitations upon the amount of money up front that a fragment of property can have upon it. The first consideration is the setback requirements; this is how far-off from the property line your house must be. In addition, many building departments change how high the building can be at the setback line. Usually this summit limit gets forward-thinking as you acquire farther and farther away from the property line.
This leads us to the next common restriction; overall top limit. This is usually used by the Planning Department to ensure that both you and your neighbors will keep fine views of the landscape beyond.
The Planning Department will afterward often restrict the amount of square footage allowed to be built upon any one lot. This is usually based upon the size of the lot; the improved your lot the more building you’re allowed to put upon it. Similarly, some jurisdictions may attempt to restrict the number of bedrooms you have on a piece of property. The explanation for this is methodically it should next restrict the number of people active in a single home.
Before buying a plan, get into open next your local Planning and Building Department and find out what kind of restrictions might be hovering vis–vis your land.
6.Don’t be fooled, be smart.
Most Websites will create the allegation that they are selling Construction Document Sets, which add together everything you compulsion to construct your additional home. This is as regards true. when what you’ve scholastic in the above sections it shouldn’t be difficult to look why this is unlikely to be true. The chances of the house fitting perfectly are rather slim. The most common problem is that the site is not perfectly flat. Even a slight grade will goal that earth will have to be moved on the order of in order to make a “pad” for the new building. with most people following to have these nifty things called “driveways” attached to their garages. since online plot companies have no idea what the condition of your site is, they will usually find the money for a assistance for the driveway, but it is unlikely that it will actually fit correctly. all of these problems usually aspiration that an architect or engineer will be required to step in and adjunct the set of documents later than extra plans of their own, and this does want additional cost.
7.How to create the most of Online Plans
Think of the scheme your buying online as a tool to creating your own new unique home. subsequent to your other plans you now have a scheme that you’re happy with, or at least we are assuming this much then again you wouldn’t have bought it. This scheme provides you like a starting dwindling to design your new home. Here are several things to deem taking into account looking at plans: First, complete you point on making changes, or are you going to be perfectly glad considering it exactly the exaggeration it is? remember that this is your home, and you should create every attempt to create it whatever you want and need. Second, see for plans that already have the same number and type of rooms that you want. helpfully resizing a room or extra shelving or additional features is much easier later extra entire additional rooms. Third, select a home that is already intended in the style that you want. If you desire a Tuscan home, next buy a Tuscan style plan. grating to incline a craftsman house into a Mediterranean house will solitary outcome in Hodge-Podge design.
8.Make the plans be active for you
So if you get in fact set sights on upon making changes the plans that you’ve purchased, subsequently you are going to have to hire someone to create these changes for you, trust me, this will eliminate the be painful that usually accompanies maddening to do it yourself. That brute the case, having a full set of construction documents in your hand isn’t going to be all that helpful, as most of the sheets are going to be archaic after changes to the floor plot have been made. There are a little handful of online house plot websites which give what is called “Conceptual Design Sets”. These sets and no-one else contain floor plans and elevations for the house. The ablaze is to be completed by the owner and their hired professional of choice. The idea makes sense, why pay for stuff you don’t need yet. If you were to employ an architect from scratch, they would do something similar to you to make the floor plan and exterior of the home and wouldn’t start considering the construction documents and engineering until you were satisfied later the floor plan. In this esteem you are saving money.

floor plan 1999 fleetwood mobile home home design and style from 1999 fleetwood mobile home floor plan
1999 redman mobile home floor plans 1999 redman mobile from 1999 fleetwood mobile home floor plan
2000 fleetwood mobile home floor plans 28 images 1999 from 1999 fleetwood mobile home floor plan
9.Think Bold!
Since you are going to the upset of purchasing plans and having a home built for you we can say yes after that that you’re not exactly glad with those tract homes popping up all more than the place. After all, it would probably be cheaper to just buy a pre-made home, after all, who doesn’t desire a home that looks exactly subsequently their neighbors? considering that in mind, look a tiny closer at the home you going on for looking at online, it distinct does look a lot in the same way as one of those cookie cutter style home, doesn’t it? After you can see this, you will probably be able to see that most of the plans offered online are pretty much your run-of-the-mill home. If you where to hire an architect, you wouldn’t take this, would you? for that reason why take it in the form of plans which are architect designed? Go bold, this is your further home and you want to shock, awe and inspire. The neighbors might stare but they’re truly jealous that they didn’t have the guts to think external the box.
10.Don’t forget to Go Green!
Its upon the tip of everyone’s tongue; “are you green?” Architecture and Construction actually contributes as much waste to our landfills and emissions to the sky as the automobile industry, but most people don’t reach home pressing the thing is. Your house is your unplanned to make a huge impact in the environment. Sustainable features are now readily available in a big showing off and the building industry is disturbing in this handing out in a huge way, but it is ultimately consumers which drive this move. Be portion of it by innate green. Some house plans provide sustainable features, or suggestions on how to convert a scheme to a green home. You would be surprised at how east it can be, and how it can actually keep you child support right out the admission as well as in the long run. like are the days of the 20 year investment. If a website selling house plans doesn’t have green features or at least recommendations upon how to accumulate them, it isn’t worth beans. In the end it is occurring to you. After you have those plans in your hand, warm off the press, its your esteemed responsibility of asking your architect to make your home green. Most architects will be more than happy to help. Here are a few suggestions to acquire the ball rolling: First, Use recycled materials in the house such as recycled lumber of metal studs. Second, Install efficient appliances, such as activity Star rated machines. Third, look into materials later than low VOC’s, which will lump the freshen mood of your home.
Thanks for visiting our site, content above published by plougonver.com. Nowadays we are pleased to declare that we have discovered an extremely interesting topic to be pointed out. that is, 1999 Fleetwood Mobile Home Floor Plan. Many individuals attempting to find information about 1999 Fleetwood Mobile Home Floor Plan and of course one of these is you, is not it?




















