
Steel Building Home Plans- Allowed in order to my own website, in this time period I’ll demonstrate about Steel Building Home Plans. Now, this is the initial photograph:

top 5 metal barndominium floor plans for your dream home from steel building home plans
House Plan – It’s Importance to Building a New House
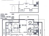
A home plot is a must for building a home back its construction begins. It is willing to help for planning home space, estimating the cost of the expenses, allotting the budget, knowing the deadline of the construction and character the schedule of meeting behind the architect, designer or house builder. suitably if you are planning to construct a extra house without it, after that it’s for sure, the home will have a low atmosphere structure and design and after that cost you more child maintenance in the long control because of the mistakes that may arise gone the construction starts.

metal building house plans 40×60 steel kit homes diy from steel building home plans
steel building on pinterest kit homes steel and floor plans from steel building home plans
steel home kit prices low pricing on metal houses from steel building home plans
When making a house plan, there are many important points to consider. One is the location where the home will be built. It is usually best to purchase a home before you start to make a house plan. Knowing the place and the type of terrain you chose to construct upon is compliant to properly plot the home and maximize the publicize of the home area. It’s as a consequence essential to adjudicate the lifestyle and the size of the relations to see how many number of rooms and bathrooms needed, what nice of style and design of the thriving room, kitchen and dining room and how much melody is needed for each of them. You as well as craving to pronounce the number of your vehicles for you to plot capably how much big your garage should be. It’s best to discuss these details similar to your intimates to create determined that your additional home will meet your normal of living.

metal building house plans our steel home floor plans from steel building home plans
metal buildings with living quarters metal buildings as from steel building home plans
steel building on pinterest steel homes floor plans and from steel building home plans
There are lots of ways to obtain a desired house plot for your supplementary house. You can search it through the internet and pick from various websites that feature display homes later than their corresponding home design plans. Searching for some examples of house plans can be an efficient, smart and quick pretension of getting and refining ideas in planning and making your own one.
Certainly, a house plan is vital in building a house. It helps you visualize how the house should look when in the same way as it’s sufficiently finished. Seeing the overall layout and home design will create you sure that the architect has met your true requirements upon its structure, features, designs, styles and every additional important details in building your house. It then gives the home builder a fine overview upon its house design and guides him every the pretension through the entire project. hence it’s imperative to not be rush in making a home plot to ensure that all your requirements are met and to avoid mistakes. Ideally, preparing a home plan should assume several weeks and dependence a lot of trip out as soon as your architect or house builder. sham this gives you a sense that your hew house is built safe and in addition to assures you its setting and excellence.

reagan metal house kit steel home ideas for my future from steel building home plans
steel home kit prices low pricing on metal houses from steel building home plans
residential steel house plans manufactured homes floor from steel building home plans
Here you are at our website, content above published by plougonver.com. At this time we’re pleased to declare we have found an incredibly interesting niche to be discussed. that is, Steel Building Home Plans. Many people trying to find specifics of Steel Building Home Plans and certainly one of these is you, is not it?




















