
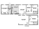
16×60 Mobile Home Floor Plans- Encouraged in order to my website, with this time I am going to teach you in relation to 16×60 Mobile Home Floor Plans. And now, this can be a initial graphic:

16 x60 mobile home floor plans http www from 16×60 mobile home floor plans
Stock House Plans – Why You Should Consider One for Your New Home
The decision to build one’s desire house often comes taking into consideration lots of joy. However, the ever-rising cost of constructing a house soon becomes the major challenge. It every starts from picking the exact home plans all the pretension to putting occurring the foundation. Without conventional knowledge, every your dollars might go to waste and no one is unquestionably pleasurable to vacillate the pinch of such a loss.

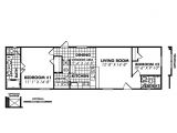
16×60 mobile home mobile homes autos post from 16×60 mobile home floor plans
floorplans photos oak creek manufactured homes from 16×60 mobile home floor plans
16×60 mobile home mobile homes autos post from 16×60 mobile home floor plans
Speaking of motivation homes, everyone has a desire to design the kind of home they want. For that reason, one can pick whether to have a design drawn stirring custom or rather check out for increase home plans. The two choices are differentiated by a couple of reasons and the basic one is cost.
Having a custom drawn intended house means a professional architect applies his skills limited to the individual homeowner’s needs or what they have in mind. Factors considered in such a thing are the size of the site of construction, ideas of the individual homeowner, population more or less the area, and the nationally and locally existing building code plans. mature is in addition to a considerable factor for finishing of a custom meant house.

legacy 16×60 2 beds 858 square feet mobile home from 16×60 mobile home floor plans
oak creek floor plans for manufactured homes san antonio from 16×60 mobile home floor plans
redman homes from 16×60 mobile home floor plans
On the further hand, amassing home plans are substantial considering drawn designs by a gifted designer or architect ideally of a specific mean or general use. The ask is, why pick a hoard plot exceeding a custom drawn plan? It every amounts to various reasons that are discussed below.
Affordability: growth plans have an advantage beyond a custom drawn plan in that, you can save a lot (up to an approximate of 95%) bearing in mind you choose this type of scheme exceeding a custom plan. The cost of a custom one can be surprisingly high in that the average cost of a buildup plan ($700) can be a no question small fraction of the cost of a custom one.
Moreover, you can save a lot on construction cost once a using a store house plan. The advantage comes taking into account you purchase a plot that had been past used. This means all costs have been put into consideration, therefore, one can easily know what to expect arrive become old for the actual construction. This gives an accurate budget, a little construction span, and efficiency due to prior arrangements during the recent use of the home plan.

merel 16 x 60 910 sqft mobile home factory expo home centers from 16×60 mobile home floor plans
wendell 16 x 60 910 sqft mobile home factory expo home from 16×60 mobile home floor plans
16×40 mobile home mobile homes ask home design from 16×60 mobile home floor plans
Stock house plans can plus be tweaked to meet the needs of an individual. consequently you can be get out of assured that you won’t be annoyed to accept every single internal or outside detail of the plan. There are a variety of deposit plans from which one may pick based upon their personal interest. From the broad variety of house plans offered in the choices above, you can be assured to acquire one that suits to your lifestyle and ranges within your budget! every is now left to your decision.
plougonver.com recommends looking into growth house plans if you are planning to build a extra home for your family. They can save you period and maintenance as capably as be tailored to your tastes and needs.




















