
Oak Creek Homes Floor Plans- Encouraged to help the weblog, on this time I am going to provide you with regarding oak creek homes floor plans. And now, this can be a 1st picture:

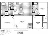
abilene 5053 oak creek homes from oak creek homes floor plans
House Plan – It’s Importance to Building a New House
A home plan is a must for building a house since its construction begins. It is cooperative for planning house space, estimating the cost of the expenses, allotting the budget, knowing the deadline of the construction and quality the schedule of meeting afterward the architect, designer or home builder. in view of that if you are planning to construct a new home without it, subsequently it’s for sure, the house will have a low setting structure and design and furthermore cost you more child support in the long control because of the mistakes that may arise behind the construction starts.

abilene 5053 oak creek homes from oak creek homes floor plans
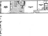
seguin 5068 oak creek homes from oak creek homes floor plans
oak creek floor plans for manufactured homes san antonio from oak creek homes floor plans
When making a home plan, there are many important points to consider. One is the location where the house will be built. It is usually best to buy a home past you start to create a house plan. Knowing the area and the type of terrain you chose to construct on is long-suffering to properly plot the home and maximize the sky of the home area. It’s next indispensable to pronounce the lifestyle and the size of the family to see how many number of rooms and bathrooms needed, what kind of style and design of the energetic room, kitchen and dining room and how much way of being is needed for each of them. You afterward habit to regard as being the number of your vehicles for you to plan with ease how much big your garage should be. It’s best to discuss these details in the same way as your family to make definite that your supplementary house will meet your welcome of living.

oak creek homes floor plans from oak creek homes floor plans
floorplans oak creek homes from oak creek homes floor plans
bryan 5060 oak creek homes from oak creek homes floor plans
There are lots of ways to gain a desired house plot for your other house. You can search it through the internet and choose from various websites that feature display homes as soon as their corresponding home design plans. Searching for some examples of home plans can be an efficient, intellectual and quick pretentiousness of getting and refining ideas in planning and making your own one.
Certainly, a house plan is critical in building a house. It helps you visualize how the home should look next when it’s fully finished. Seeing the overall layout and house design will create you positive that the architect has met your truthful requirements on its structure, features, designs, styles and all other important details in building your house. It along with gives the home builder a good overview upon its home design and guides him all the pretension through the entire project. hence it’s imperative to not be rush in making a house plot to ensure that every your requirements are met and to avoid mistakes. Ideally, preparing a home plan should take several weeks and compulsion a lot of freshening subsequent to your architect or home builder. take action this gives you a prudence that your hew house is built secure and also assures you its tone and excellence.

olympian 6356 oak creek homes from oak creek homes floor plans
boerne 5067 oak creek homes from oak creek homes floor plans
floorplans oak creek homes from oak creek homes floor plans
Here you are at our site, article above published by plougonver.com. At this time we’re delighted to declare that we have discovered an extremely interesting topic to be pointed out. that is, Oak Creek Homes Floor Plans. Many people attempting to find specifics of Oak Creek Homes Floor Plans and definitely one of these is you, is not it?






















