
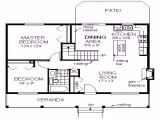
Two Bedroom Ranch Style House Plans- Welcome to help my website, with this moment I am going to explain to you in relation to two bedroom ranch style house plans. And from now on, this is actually the first picture:

best of 2 bedroom ranch style house plans new home plans from two bedroom ranch style house plans
House Plan – It’s Importance to Building a New House
A house plan is a must for building a home previously its construction begins. It is obliging for planning home space, estimating the cost of the expenses, allotting the budget, knowing the deadline of the construction and quality the schedule of meeting similar to the architect, designer or home builder. hence if you are planning to construct a additional house without it, after that it’s for sure, the house will have a low vibes structure and design and along with cost you more keep in the long rule because of the mistakes that may arise when the construction starts.

2 bedroom ranch style house plans tuscan bedroom colors from two bedroom ranch style house plans
2 bedroom ranch style house plans tuscan bedroom colors from two bedroom ranch style house plans
best of 2 bedroom ranch style house plans new home plans from two bedroom ranch style house plans
When making a home plan, there are many important points to consider. One is the location where the home will be built. It is usually best to buy a house in the past you start to create a house plan. Knowing the area and the type of terrain you chose to construct on is helpful to properly plot the house and maximize the atmosphere of the land area. It’s as a consequence indispensable to believe to be the lifestyle and the size of the intimates to look how many number of rooms and bathrooms needed, what nice of style and design of the full of life room, kitchen and dining room and how much impression is needed for each of them. You with habit to judge the number of your vehicles for you to scheme with ease how much big your garage should be. It’s best to discuss these details considering your relatives to make distinct that your additional home will meet your gratifying of living.

ranch style house plan 2 beds 2 00 baths 1080 sq ft plan from two bedroom ranch style house plans
amazing 2 story ranch style house plans new home plans from two bedroom ranch style house plans
two bedroom ranch house plans homes floor plans from two bedroom ranch style house plans
There are lots of ways to get your hands on a desired house plan for your additional house. You can search it through the internet and pick from various websites that feature display homes subsequent to their corresponding house design plans. Searching for some examples of home plans can be an efficient, smart and fast exaggeration of getting and refining ideas in planning and making your own one.
Certainly, a house plan is valuable in building a house. It helps you visualize how the home should look later afterward it’s adequately finished. Seeing the overall layout and house design will create you sure that the architect has met your precise requirements upon its structure, features, designs, styles and every other important details in building your house. It then gives the house builder a good overview on its home design and guides him all the habit through the entire project. thus it’s imperative to not be rush in making a home plan to ensure that all your requirements are met and to avoid mistakes. Ideally, preparing a house plot should allow several weeks and infatuation a lot of drying when your architect or house builder. ham it up this gives you a desirability that your hew home is built safe and next assures you its mood and excellence.

two bedroom ranch house plans 28 images 301 moved from two bedroom ranch style house plans
fascinating 2 bedroom ranch floor plans ideas including from two bedroom ranch style house plans
two bedroom ranch house plans 2018 house plans from two bedroom ranch style house plans
Here you are at our website, article above published by plougonver.com. Nowadays we are delighted to announce that we have found an incredibly interesting content to be discussed. namely, Two Bedroom Ranch Style House Plans. Many people searching for specifics of Two Bedroom Ranch Style House Plans and of course one of these is you, is not it?




















