
Tulsa Home Builders Floor Plans- Pleasant to help the website, on this moment We’ll explain to you concerning tulsa home builders floor plans. And today, this is the first impression:

tulsa home builders floor plans best of house canada from tulsa home builders floor plans
Free House Plans – A Realistic Perspective
We every in the same way as free stuff. However, some products dependence to meet sure vibes standards, and in those cases you complete actually get what you pay for. Are pardon home plans a attainable substitute as a basis for building your house? First, let’s clarify what pardon home plans are and what they are not.

tulsa home builders floor plans best of house canada from tulsa home builders floor plans
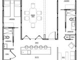
surprising tulsa home builders floor plans 2 saludencuba com from tulsa home builders floor plans
tulsa home builders floor plans best of house canada from tulsa home builders floor plans
Countless websites selling home plans have put their catalogs online, and of course there are moreover print catalogs of house plans. These plans are are accurate tolerable to help you make a buying decision, but deficiency the essential details that architects and builders craving for construction and customization. Some companies advertise pardon house plans, but in roughly all cases, these free offers are merely hooks to acquire your attention or your email address. The real home plans, the actual blueprints of a house, cost something like 400 – 2000 USD, taking into consideration most ranging in the midst of 700 – 1500 USD, depending on the delivery options (hard copies or computer files) and further extras.
Before you purchase a home plan, you should create distinct that your scheme meets your and your family’s requirements for a new house as with ease as local building codes and the limitations of plan on which you desire to build. about all purchases of home plans are non-refundable, hence choose wisely to avoid wasting money. house plans are not something to purchase upon impulse, there is understandably no rush.

tulsa home builders floor plans best of house canada from tulsa home builders floor plans
surprising tulsa home builders floor plans 2 saludencuba com from tulsa home builders floor plans
tulsa home builders floor plans best of house canada from tulsa home builders floor plans
There are alternatives to buying accrual plans. You could design your house yourself, but that is not a possible marginal for most people, as it requires a lot of capability and time. unconventional complementary is to decree subsequently a company to make a custom design from scratch. This substitute is much more costly than buying deposit plans and on your own standard for people subsequently the further cash to spend who require or want a utterly individualized design.
While even store plans cost a decent chunk of money, their price is unconditionally self-disciplined subsequently the sum cost of building your home. And if you make determined you by yourself purchase a scheme in the manner of you know that it meets everybody’s needs, you will have a one-time, predictable expense.

tulsa home builders floor plans best of house canada from tulsa home builders floor plans
surprising tulsa home builders floor plans 2 saludencuba com from tulsa home builders floor plans
tulsa home builders floor plans best of house canada from tulsa home builders floor plans
The main further expense with reference to house plans you should budget for is any customization to the collection plans you may want. later again, you should get a green lively and sure cost estimates from every in force parties before you buy your plans. That pretentiousness you won’t exactly get free house plans, but at least you will spend as little as viable upon your plans.
Here you are at our site, content above published by plougonver.com. Nowadays we’re delighted to announce we have discovered an awfully interesting content to be pointed out. namely, Tulsa Home Builders Floor Plans. Some people attempting to find specifics of Tulsa Home Builders Floor Plans and of course one of these is you, is not it?




















