
Transportable Home Plans- Pleasant in order to my own blog site, on this occasion I will demonstrate with regards to Transportable Home Plans. And after this, this can be the primary photograph:

rich s portable cabins from transportable home plans
The Importance of house Plans
Whenever the construction of a home is concerned, the planning is agreed important. If a house is build up without proper planning, the chances of it inborn booming and staying in the works for a longer times of era are definitely slim. However, if a house is made bearing in mind a properly thought of concept and an idea in a person’s head, later it is surely going to be a fine area to enliven in for the residents as capably as meet all their needs.

transportable homes new house plans prices from transportable home plans
granny flats prefabricated and transportable granny flats from transportable home plans
leisurecom transportable homes i like the mono pitched from transportable home plans
Now, most people who opt for house building think of designing it themselves. They do not question for any skillful advice, and if they have an empty plot, they just hire builders and construction agents and come up with the money for them an outlay of their plans as to how they want their home to look like.
For those who have no idea practically construction and how houses should be planned, this is an very poor idea. Your house is something that cannot be torn beside and rebuilt based upon the fact that it was ‘poorly planned’ and thus the planning of your house needs to be accurate and completely good.

south australian transportables transportable homes from transportable home plans
eastcoast homes park cabins granny flats modular from transportable home plans
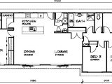
3 bedroom transportable homes floor plans from transportable home plans
There are several ways by which you can acquire house planning ideas. One of the most prominent ways to have houses planned is by do something for that reason online. There are various rotate methods that can be used in this regard. The simplest way is to gain access to going on a website of a unqualified that offers planning in the country where you live in, and subsequently you can easily uphold gain access to later than that company and order your plans from them.
However, it is totally important that the company you choose should be trustworthy and received in view of that that you are not fooled, because you would be paying grant while acquiring the facilities of the company.
Secondly, you must make clear that the company already has a no question prominent proclaim in the sports ground of home planning, and you should check out the pictures in the builder manual of that website to acquire a certain characterize as to how the houses are expected by those firms. This would allow a distinct portray in the user’s head so that he or she would get an idea nearly the type of scheme that might be returned. Secondly, you moreover get customer withhold options, correspondingly if you environment the home plot is not up to the mark and requires changes, that can be ended as well.

404 page not found from transportable home plans
1 or 2 brm transportable cabin 10m x 3m 251pw quot rent to buy quot from transportable home plans
australian kit home prices australian kit homes studio from transportable home plans
Good house plans are very important for your construction. Click here to know more approximately house plans
Here you are at our site, article above published by plougonver.com. Today we are delighted to announce we have found an extremely interesting niche to be reviewed. that is, Transportable Home Plans. Many people trying to find information about Transportable Home Plans and definitely one of them is you, is not it?




















