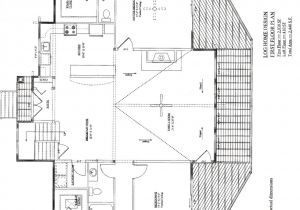
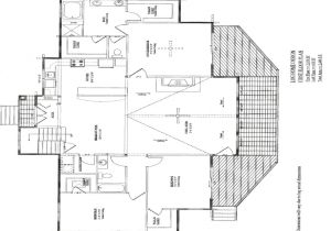
Timber Homes Floor Plans Bristol Dutch Saltbox Vermont Frames is related to House Plans. if you looking for Timber Homes Floor Plans Bristol Dutch Saltbox Vermont Frames and you feel this is useful, you must share this image to your friends. we also hope this image of Timber Homes Floor Plans Bristol Dutch Saltbox Vermont Frames can be useful for you. we will always give new source of image for you
have new images for Timber Homes Floor Plans Bristol Dutch Saltbox Vermont Frames? please contact us immediately.

Disclaimer
Timber Homes Floor Plans Bristol Dutch Saltbox Vermont Frames and all other pictures, designs or photos on our website are copyright of their respective owners. we get our pictures from another websites, search engines and other sources to use as an inspiration for you. please contact us if you think we are infringing copyright of your pictures using contact page. we will be very happy to help you.
Tags: timber homes
https://www.plougonver.com/timber-homes-floor-plans/timber-homes-floor-plans-bristol-dutch-saltbox-vermont-frames/
Download by size:Handphone Tablet Desktop (Original Size)
Back To Timber Homes Floor Plans



















