southern energy

southern Energy Homes Floor Plans

Southern Energy Homes Floor Plans 6 Cool southern Energy Homes Floor Plans House Plans 85704
Southern Energy Homes Floor Plans 6 Cool southern Energy Homes Floor Plans House Plans 85704
Southern Energy Homes Floor Plans Rio Grande 2 southern Energy Fossil Creek Collection
Southern Energy Homes Floor Plans 6 Cool southern Energy Homes Floor Plans House Plans 85704
Southern Energy Homes Floor Plans southern Energy Homes Floor Plans 28 Images 6 Cool

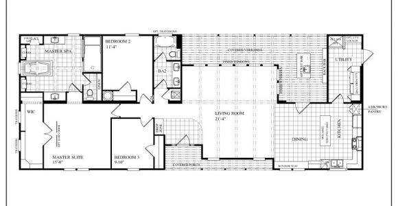
southern Energy Homes Floor Plans- Pleasant to my website, in this time period I will show you in relation to southern energy homes floor plans. And from now on, this is the first photograph: ...