ryan homes charlotte nc

Ryan Homes Florence Floor Plan

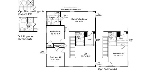
Ryan Homes Florence Floor Plan Building Our First Home Florence Florence Floor Plan
Ryan Homes Florence Floor Plan Building Our First Home Florence Florence Floor Plan
Ryan Homes Florence Floor Plan Ryan Homes Ohio Floor Plans Unique Home Designs Ryan Homes
Ryan Homes Florence Floor Plan Building Our First Home Florence Florence Floor Plan
Ryan Homes Florence Floor Plan Beautiful Ryan Homes Sienna Floor Plan New Home Plans Design

Ryan Homes Florence Floor Plan- Encouraged to be able to my own weblog, in this time I am going to demonstrate concerning ryan homes florence floor plan. And today, this is actually the primary g...