mobility mobile banking app

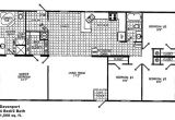
Nobility Mobile Home Floor Plans

Nobility Mobile Home Floor Plans Mobile Home for Rent In Leesburg Fl Id 615968
Nobility Mobile Home Floor Plans Mobile Home for Rent In Leesburg Fl Id 615968
Nobility Mobile Home Floor Plans Mobile Home for Sale In Lake Worth Fl Id 715571
Nobility Mobile Home Floor Plans Mobile Home for Rent In Largo Fl Id 705460
Nobility Mobile Home Floor Plans Senior Retirement Living 2013 Nobility Park Model

Nobility Mobile Home Floor Plans- Welcome to our blog site, in this particular period I'll demonstrate concerning nobility mobile home floor plans. And after this, this is actually the initial ph...