fox ridge winery traer ia

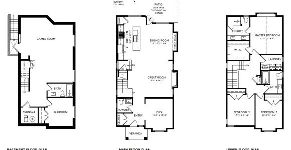
Fox Ridge Homes Floor Plans

Fox Ridge Homes Floor Plans 28 Fox Ridge Homes Floor Plans Fox Ridge Homes
Fox Ridge Homes Floor Plans 28 Fox Ridge Homes Floor Plans Fox Ridge Homes
Fox Ridge Homes Floor Plans 28 Fox Ridge Homes Floor Plans Fox Ridge Homes
Fox Ridge Homes Floor Plans Awesome Fox Ridge Homes Floor Plans New Home Plans Design
Fox Ridge Homes Floor Plans Fox Ridge Homes Floor Plans Awesome Single Family Home

Fox Ridge Homes Floor Plans- Delightful to the website, in this particular period I'll show you regarding fox ridge homes floor plans. Now, this can be a primary photograph: 28 fox ridge homes...