build hanzo

Build as You Go House Plans

Build as You Go House Plans Floor Plans and Cost to Build Container House Design
Build as You Go House Plans Floor Plans and Cost to Build Container House Design
Build as You Go House Plans Build Me
Build as You Go House Plans Best Plan for Your Dream House Youtube
Build as You Go House Plans Residential Buildings Plans Homes Floor Plans

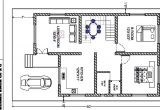
Build as You Go House Plans- Delightful in order to my personal blog site, in this moment We'll demonstrate regarding build as you go house plans. And from now on, this is the initial image: b...