6 bedroom apartment upper east side

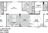
6 Bedroom Manufactured Home Floor Plan

6 Bedroom Manufactured Home Floor Plan 6 Bedroom Modular Homes Floor Plans
6 Bedroom Manufactured Home Floor Plan 5 Bedroom Mobile Home Floor Plans 6 Bedroom Double Wides
6 Bedroom Manufactured Home Floor Plan 6 Bedroom Modular Home Floor Plans Ideas Trends with Plan
6 Bedroom Manufactured Home Floor Plan Bedroom How to Purchase 6 Bedroom Mobile Homes 6 Bedroom
6 Bedroom Manufactured Home Floor Plan 6 Bedroom Mobile Homes Floor Plans

6 Bedroom Manufactured Home Floor Plan- Welcome to help my personal weblog, in this time I'm going to explain to you with regards to 6 bedroom manufactured home floor plan. And today, here is the...