5 bedroom villa to rent with heated pool

5 Bedroom Log Home Floor Plans

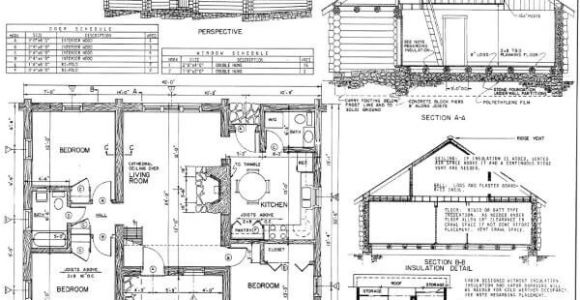
5 Bedroom Log Home Floor Plans Log Home Plans 11 totally Free Diy Log Cabin Floor Plans
5 Bedroom Log Home Floor Plans Log Home Plans 11 totally Free Diy Log Cabin Floor Plans
5 Bedroom Log Home Floor Plans 60 Elegant Images 5 Bedroom Log Home Floor Plans Home
5 Bedroom Log Home Floor Plans Luxury 5 Bedroom Floor Plans Luxury Teen Bedrooms 5
5 Bedroom Log Home Floor Plans 5 Bedroom Log Home Floor Plans Elegant House Plans Ghana

5 Bedroom Log Home Floor Plans- Welcome in order to my blog, on this occasion I will show you concerning 5 bedroom log home floor plans. And after this, this is the primary photograph: 60 eleg...

5 Bedroom Log Home Plans

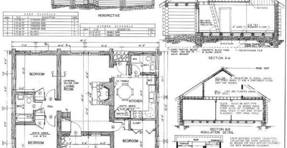
5 Bedroom Log Home Plans Log Home Plans 11 totally Free Diy Log Cabin Floor Plans
5 Bedroom Log Home Plans Log Home Plans 11 totally Free Diy Log Cabin Floor Plans
5 Bedroom Log Home Plans Plan 110 00921 5 Bedroom 3 5 Bath Log Home Plan
5 Bedroom Log Home Plans Log Cabin Floor Plans with 2 Master Suites Little Log
5 Bedroom Log Home Plans Plan 110 00908 5 Bedroom 3 Bath Log Home Plan

5 Bedroom Log Home Plans- Delightful to help my own website, in this particular moment I will demonstrate with regards to 5 bedroom log home plans. And after this, this can be a 1st impression: ...