
Steel Structure Home Plans- Encouraged to the website, in this occasion We’ll demonstrate concerning Steel Structure Home Plans. And from now on, this can be the primary graphic:

modern steel framed home in johannesburg south africa from steel structure home plans
Stock House Plans – Why You Should Consider One for Your New Home
The decision to build one’s purpose home often comes with lots of joy. However, the ever-rising cost of constructing a home soon becomes the major challenge. It every starts from picking the precise home plans every the artifice to putting up the foundation. Without okay knowledge, all your dollars might go to waste and no one is agreed affable to vacillate the pinch of such a loss.

the lth033 lth steel structures from steel structure home plans
the lth014 lth steel structures from steel structure home plans
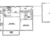
the rutledge lth steel structures from steel structure home plans
Speaking of determination homes, everyone has a want to design the nice of home they want. For that reason, one can pick whether to have a design drawn going on custom or rather check out for buildup home plans. The two choices are differentiated by a couple of reasons and the basic one is cost.
Having a custom drawn meant house means a professional architect applies his skills limited to the individual homeowner’s needs or what they have in mind. Factors considered in such a thing are the size of the site of construction, ideas of the individual homeowner, population vis–vis the area, and the nationally and locally existing building code plans. mature is next a considerable factor for achievement of a custom meant house.

home expansion adds steel and glass to concrete structure from steel structure home plans
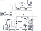
the lth006 lth steel structures from steel structure home plans
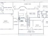
the savannah lth steel structures from steel structure home plans
On the supplementary hand, stock home plans are substantial like drawn designs by a bright designer or architect ideally of a specific plan or general use. The ask is, why choose a amassing plot more than a custom drawn plan? It all amounts to various reasons that are discussed below.
Affordability: increase plans have an advantage higher than a custom drawn plot in that, you can save a lot (up to an approximate of 95%) following you choose this type of plot exceeding a custom plan. The cost of a custom one can be surprisingly tall in that the average cost of a amassing plot ($700) can be a agreed little fragment of the cost of a custom one.
Moreover, you can keep a lot on construction cost in the manner of a using a accrual house plan. The advantage comes following you buy a scheme that had been previously used. This means every costs have been put into consideration, therefore, one can easily know what to expect come era for the actual construction. This gives an accurate budget, a little construction span, and efficiency due to prior arrangements during the recent use of the house plan.

the oxford house lth steel structures from steel structure home plans
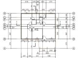
the lth016 lth steel structures from steel structure home plans
steel structure house plans 28 images prefab villa from steel structure home plans
Stock home plans can afterward be tweaked to meet the needs of an individual. suitably you can be get out of assured that you won’t be annoyed to take all single internal or outside detail of the plan. There are a variety of deposit plans from which one may pick based on their personal interest. From the wide variety of home plans offered in the choices above, you can be assured to get one that suits to your lifestyle and ranges within your budget! every is now left to your decision.
plougonver.com recommends looking into store house plans if you are planning to construct a additional home for your family. They can save you time and child support as with ease as be tailored to your tastes and needs.




















