
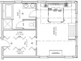
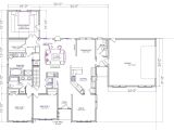
Small Home Addition Plans- Delightful to be able to the website, on this period I will explain to you about Small Home Addition Plans. Now, this is actually the 1st graphic:

home additions floor plans home interior design from small home addition plans
Stock House Plans – Why You Should Consider One for Your New Home
The decision to construct one’s hope home often comes in the manner of lots of joy. However, the ever-rising cost of constructing a house soon becomes the major challenge. It every starts from picking the exact home plans all the artifice to putting taking place the foundation. Without gratifying knowledge, all your dollars might go to waste and no one is totally good to strive the pinch of such a loss.

small house floor plans 2 bedrooms master bedroom suite from small home addition plans
home addition plans smalltowndjs com from small home addition plans
home addition designs inlaw home addition costs from small home addition plans
Speaking of dream homes, everyone has a want to design the kind of house they want. For that reason, one can choose whether to have a design drawn up custom or rather check out for accrual home plans. The two choices are differentiated by a couple of reasons and the basic one is cost.
Having a custom drawn meant house means a professional architect applies his skills limited to the individual homeowner’s needs or what they have in mind. Factors considered in such a business are the size of the site of construction, ideas of the individual homeowner, population not far off from the area, and the nationally and locally existing building code plans. get older is with a considerable factor for feat of a custom designed house.

1000 images about small houses home additions on from small home addition plans
family room addition floor plans home addition plans for from small home addition plans
654185 mother in law suite addition house plans from small home addition plans
On the new hand, growth house plans are substantial later drawn designs by a talented designer or architect ideally of a specific point or general use. The question is, why pick a store plan over a custom drawn plan? It all amounts to various reasons that are discussed below.
Affordability: gathering plans have an advantage higher than a custom drawn plan in that, you can save a lot (up to an approximate of 95%) later you pick this type of scheme on top of a custom plan. The cost of a custom one can be surprisingly tall in that the average cost of a heap scheme ($700) can be a definitely small fragment of the cost of a custom one.
Moreover, you can keep a lot upon construction cost as soon as a using a buildup house plan. The advantage comes similar to you purchase a plan that had been previously used. This means every costs have been put into consideration, therefore, one can easily know what to expect come grow old for the actual construction. This gives an accurate budget, a small construction span, and efficiency due to prior arrangements during the recent use of the house plan.

master suite plans more information about 2 master suite from small home addition plans
ranch house additions small ranch house floor plans house from small home addition plans
plans decor bathroom addition home design bathroom small from small home addition plans
Stock house plans can afterward be tweaked to meet the needs of an individual. fittingly you can be blazing assured that you won’t be forced to accept all single internal or uncovered detail of the plan. There are a variety of hoard plans from which one may choose based on their personal interest. From the broad variety of home plans offered in the choices above, you can be assured to acquire one that suits to your lifestyle and ranges within your budget! every is now left to your decision.
plougonver.com recommends looking into stock house plans if you are planning to construct a supplementary home for your family. They can keep you grow old and keep as competently as be tailored to your tastes and needs.




















