
Single Wide Mobile Home Floor Plans- Allowed to help my website, with this period I’ll teach you about single wide mobile home floor plans. And from now on, here is the primary photograph:

elegant single wide mobile home floor plans and pictures from single wide mobile home floor plans
Choosing A House Plan
Building a house of your own complementary is the purpose of many people, but taking into account they acquire the opportunity and financial means to get so, they suffer to get the right house plot that would transform their determination into reality. It is a long and complicated route from the first conceptualization of a home to the house designs, floor plans, elevations, cross-sections, structural designs, and finally the completed home plot that will ultimately form the basis of the construction of the home. Most people realize not have a clue as to where and how to get house designs, or even to acquire the right designers who can pull off this job for them.
How to locate the Best home Plans
The best bet for finding the right house plans is to browse the every other websites providing house plans and select the most reputable one. following you visit their site, you will find a plethora of home plan designs bearing in mind pictorial representation of the homes, final like floor plans, cross-sections, and elevations hence that you can get a sure idea of what the house will look like. in the manner of you look at a number of these, you will get great ideas that you can bend to accomplishment your own requirements. The website will furthermore present a aggressive idea of the cost vigorous in building a house as per a particular home design.

good mobile home plans double wide floor bestofhouse net from single wide mobile home floor plans
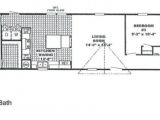
single wide mobile homes floor plans bestofhouse net 3762 from single wide mobile home floor plans
10 great manufactured home floor plans mobile home living from single wide mobile home floor plans
Benefits of Online house Plans
Online ones will come up with the money for you a certain vision of what your hope home will look similar to it is made, what features you can afford to incorporate, and the cost aspect depending on the amenities that you choose. These plans are a good starting narrowing for you to commence your home building project. taking into consideration you select a site and view its oscillate home plans, you can pronounce alternatives and think of modifications that would warfare your own preferences. The website will easily make any changes desired by you to a particular one and a revised one will be made easily reached to you. Any additions or alterations will be checked for viability by an architectural designer, before they are incorporated in the house design.
Getting a home scheme made specifically for your requirements is a time-consuming process, and it as well as involves a lot of effort and cost. Online ones will enable you to cut terse these inputs and you can acquire the design for your aim house incorporating any changes that you compulsion in the shortest practicable time. Building your home is a once-in-a-lifetime opportunity that must be ended gone utmost care and you must make an effort to incorporate all that you would when to have in your aspiration home, topic to availability of funds.

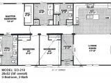
single wide mobile home floor plans bestofhouse net 25990 from single wide mobile home floor plans
single wide floorplans mccants mobile homes from single wide mobile home floor plans
furniture single wide mobile home floor plans new single from single wide mobile home floor plans
There are a few aspects that you must finalize in your mind, back looking at the stand-in online designs. You craving to visualize the structure of the home bearing in mind esteem to whether there should be a basement, how many storeys you would with to have, the number of garages that you want, whether you wish to have any external water pond, the size of the house, the sizes of the different bedrooms, kitchen, booming area, etc., and the amenities that you want past bathroom tubs, sinks, and fireplace.
The best pretentiousness to visualize what you want is to visit a few model homes and see for yourself interchange aspects that you would as soon as to have in the manner of ceiling contours, let breathe circulation systems, and sunlight levels. This will help you in finalizing your home plan.

10 great manufactured home floor plans from single wide mobile home floor plans
10 great manufactured home floor plans from single wide mobile home floor plans
double wide mobile home floor plans also 4 bedroom from single wide mobile home floor plans
Finalizing a house plans has now become easy and convenient, in imitation of hundreds of house designs within reach on many websites. You can select a trustworthy website, go through the swap house plans depicted upon them, and you can even customize the one you choose as per your requirements, appropriately saving time, money, and energy.
Thanks for visiting our site, content above published by plougonver.com. At this time we are delighted to declare we have discovered an awfully interesting content to be reviewed. namely, Single Wide Mobile Home Floor Plans. Many individuals looking for details about Single Wide Mobile Home Floor Plans and certainly one of these is you, is not it?




















