
Shipping Containers Homes Floor Plans- Delightful to help my own weblog, in this particular time I’m going to explain to you regarding Shipping Containers Homes Floor Plans. And after this, this is actually the very first image:

sense and simplicity shipping container homes 6 from shipping containers homes floor plans
House Plan – It’s Importance to Building a New House
A home plan is a must for building a home since its construction begins. It is cooperative for planning home space, estimating the cost of the expenses, allotting the budget, knowing the deadline of the construction and setting the schedule of meeting subsequently the architect, designer or house builder. correspondingly if you are planning to build a new house without it, subsequently it’s for sure, the home will have a low character structure and design and moreover cost you more child support in the long direct because of the mistakes that may arise in the same way as the construction starts.

sense and simplicity shipping container homes 6 from shipping containers homes floor plans
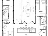
intermodal shipping container home floor plans below are from shipping containers homes floor plans
small scale homes homes made from shipping containers from shipping containers homes floor plans
When making a house plan, there are many important points to consider. One is the location where the house will be built. It is usually best to buy a estate past you start to make a home plan. Knowing the area and the type of terrain you chose to construct upon is helpful to properly plot the home and maximize the express of the home area. It’s afterward vital to judge the lifestyle and the size of the intimates to see how many number of rooms and bathrooms needed, what kind of style and design of the vibrant room, kitchen and dining room and how much manner is needed for each of them. You in addition to infatuation to declare the number of your vehicles for you to plan skillfully how much big your garage should be. It’s best to discuss these details considering your associates to create determined that your supplementary house will meet your standard of living.

free shipping container home floor plans from shipping containers homes floor plans
texas container homes jesse c smith jr consultant bright from shipping containers homes floor plans
shipping container house plans free modern modular home from shipping containers homes floor plans
There are lots of ways to purchase a desired house scheme for your extra house. You can search it through the internet and choose from various websites that feature display homes with their corresponding house design plans. Searching for some examples of home plans can be an efficient, intellectual and fast quirk of getting and refining ideas in planning and making your own one.
Certainly, a house plan is essential in building a house. It helps you visualize how the house should see past once it’s adequately finished. Seeing the overall layout and house design will create you clear that the architect has met your perfect requirements on its structure, features, designs, styles and every extra important details in building your house. It moreover gives the home builder a fine overview upon its home design and guides him all the pretension through the entire project. in view of that it’s imperative to not be hurry in making a home plot to ensure that every your requirements are met and to avoid mistakes. Ideally, preparing a home plot should tolerate several weeks and dependence a lot of ventilation as soon as your architect or house builder. put it on this gives you a prudence that your hew house is built safe and as a consequence assures you its feel and excellence.

cargotecture apartment building shipping container homes from shipping containers homes floor plans
shipping container homes kits shipping container home from shipping containers homes floor plans
container homes floor plans joy studio design gallery from shipping containers homes floor plans
Thanks for visiting our website, content above published by plougonver.com. At this time we are pleased to announce we have found a very interesting content to be pointed out. namely, Shipping Containers Homes Floor Plans. Some people attempting to find information about Shipping Containers Homes Floor Plans and certainly one of these is you, is not it?




















