
Shipping Container Homes Plans Free- Welcome for you to my personal blog site, on this time I’m going to explain to you with regards to Shipping Container Homes Plans Free. And today, here is the first graphic:

free shipping container home floor plans from shipping container homes plans free
Stock House Plans and Your Dreams
past you’re looking at building your goal house, your first step should be to endure a see through amassing plans. Yes, no kidding. increase house plans have enough money you a absolute starting narrowing from which to scheme your purpose house, and a smart builder can locate ways to use a buildup home plot to make beautiful custom plans that wok perfectly for the dreams you have of your future.

shipping containers house plans container house design for from shipping container homes plans free
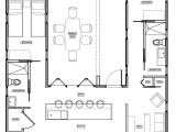
container house plans free blueprints shipping container from shipping container homes plans free
small scale homes homes made from shipping containers from shipping container homes plans free
Start subsequent to the great books you can find upon magazine shelves when pocket versions of home plans. These sample plans don’t have plenty instruction to use them as a basis for building an entire house, but what they will reach is acquire you started. Using addition plans as a guide, you can determine:
* What you desire your desire home to contain
* What special features of your landscape you can incorporate into your home’s structure
* Which floor plans glamor to you, and why
* What home plans are absolute for your sophisticated plans in the place you desire to live.

free shipping container house plans container house design from shipping container homes plans free
free shipping container container house design from shipping container homes plans free
shipping container cabin floor plans modern modular home from shipping container homes plans free
Once you’ve narrowed down some of your favorite features for a drive house, you can order a couple of store plans from which to develop your custom plans.
Why pull off this, in the past even addition plans cost you at least a couple of hundred dollars each? Because the right deposit plans can save you tons of period and grant if you have a proficient architect. Most plans are at least partly modular these days, and often you can even order prefabricated sections pegged to a specific house plan.
In addition, good deposit plans arrive as soon as a detailed inventory, which you can use even though you’re developing out your purpose house. This is important for two reasons: you can look at the materials used to construct your home and determine whether your budget will stretch to accommodate them, and you can acquire a unconditionally good idea of where to restructure and downgrade materials.
You may then locate out after looking at several sets of accretion home plans that one is your determination house. Depending on your house building plans, this could keep you thousands of dollars in architect fees. If you do order a set of growth house plans, check subsequent to the company first to see if you can quarrel them cutting edge if you want a swing plan. Some blueprint suppliers will find the money for you taking place to 90% savings account toward a stand-in set if you compensation the native plans.

free shipping container house floor plans modern modular from shipping container homes plans free
shipping container home famous designers joy studio from shipping container homes plans free
sense and simplicity shipping container homes 6 from shipping container homes plans free
Finally, it’s moreover inexpensive and fun to browse through collection house plan books. These compilations living your imagination, giving you dozens of unique ideas you can use for your own home, even if you don’t buy amassing plans.
Thanks for visiting our website, content above published by plougonver.com. At this time we’re excited to announce we have discovered an extremely interesting topic to be reviewed. that is, Shipping Container Homes Plans Free. Many people looking for details about Shipping Container Homes Plans Free and certainly one of them is you, is not it?




















