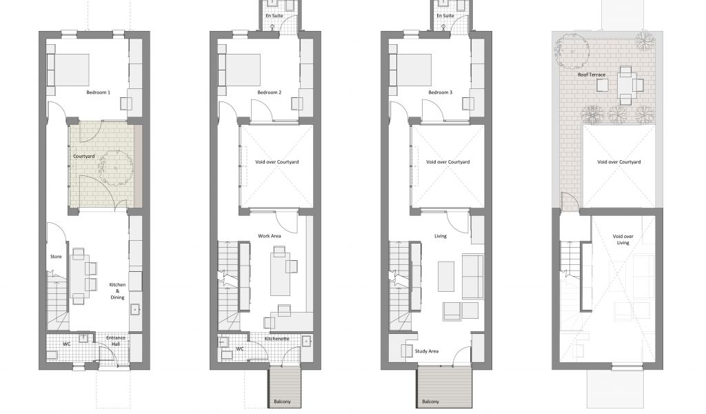
Row Housing Plans Courtyard Row House Marc Medland Architect Building is related to House Plans. if you looking for Row Housing Plans Courtyard Row House Marc Medland Architect Building and you feel this is useful, you must share this image to your friends. we also hope this image of Row Housing Plans Courtyard Row House Marc Medland Architect Building can be useful for you. we will always give new source of image for you
have new images for Row Housing Plans Courtyard Row House Marc Medland Architect Building? please contact us immediately.

Disclaimer
Row Housing Plans Courtyard Row House Marc Medland Architect Building and all other pictures, designs or photos on our website are copyright of their respective owners. we get our pictures from another websites, search engines and other sources to use as an inspiration for you. please contact us if you think we are infringing copyright of your pictures using contact page. we will be very happy to help you.
Tags:
https://www.plougonver.com/row-housing-plans/row-housing-plans-courtyard-row-house-marc-medland-architect-building/
Download by size:Handphone Tablet Desktop (Original Size)
Back To Row Housing Plans



















