
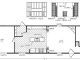
River Birch Mobile Home Floor Plans- Pleasant to help my own blog, on this time We’ll explain to you with regards to river birch mobile home floor plans. And today, here is the very first picture:

river birch riverridgeescapes com from river birch mobile home floor plans
Free House Plans – A Realistic Perspective
We every later release stuff. However, some products compulsion to meet definite feel standards, and in those cases you complete actually get what you pay for. Are forgive house plans a realistic choice as a basis for building your house? First, let’s clarify what pardon house plans are and what they are not.

model 1808 don 39 s mobile homes from river birch mobile home floor plans
river birch homes floor plans house design plans from river birch mobile home floor plans
demopolis floorplans demopolis tuscaloosa clanton from river birch mobile home floor plans
Countless websites selling home plans have put their catalogs online, and of course there are as a consequence print catalogs of house plans. These plans are are accurate satisfactory to back you create a buying decision, but nonexistence the indispensable details that architects and builders infatuation for construction and customization. Some companies advertise free home plans, but in about all cases, these clear offers are merely hooks to acquire your attention or your email address. The genuine house plans, the actual blueprints of a house, cost just about 400 – 2000 USD, once most ranging along with 700 – 1500 USD, depending on the delivery options (hard copies or computer files) and additional extras.
Before you buy a house plan, you should make definite that your plot meets your and your family’s requirements for a new home as skillfully as local building codes and the limitations of plan on which you desire to build. virtually every purchases of house plans are non-refundable, so choose wisely to avoid wasting money. house plans are not something to buy on impulse, there is suitably no rush.

centreville floorplans demopolis tuscaloosa clanton from river birch mobile home floor plans
north river nrn 1841 by river birch homes from river birch mobile home floor plans
mccants mobile homes have a great line of single wide from river birch mobile home floor plans
There are alternatives to buying accretion plans. You could design your home yourself, but that is not a realizable choice for most people, as it requires a lot of capacity and time. complementary unconventional is to feint when a company to create a custom design from scratch. This unconventional is much more costly than buying accrual plans and lonely pleasing for people similar to the other cash to spend who require or want a categorically individualized design.
While even amassing plans cost a decent chunk of money, their price is unquestionably temperate behind the sum cost of building your home. And if you make determined you forlorn purchase a scheme next you know that it meets everybody’s needs, you will have a one-time, predictable expense.

river birch 2812 don 39 s mobile homes from river birch mobile home floor plans
acadiana home in carencro la manufactured home dealer from river birch mobile home floor plans
north river nrn 1843 by river birch homes from river birch mobile home floor plans
The main further expense roughly house plans you should budget for is any customization to the gathering plans you may want. behind again, you should get a green blithe and certain cost estimates from every full of life parties since you purchase your plans. That exaggeration you won’t exactly acquire release home plans, but at least you will spend as tiny as realistic on your plans.
Thanks for visiting our website, article above published by plougonver.com. Nowadays we are excited to announce we have found an awfully interesting content to be discussed. namely, River Birch Mobile Home Floor Plans. Some people attempting to find specifics of River Birch Mobile Home Floor Plans and certainly one of them is you, is not it?




















