
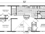
Redman Homes Floor Plans- Pleasant to my personal weblog, within this occasion I’m going to teach you in relation to redman homes floor plans. And after this, here is the first image:

manufactured homes floor plans redman homes from redman homes floor plans
House Plan – It’s Importance to Building a New House
A home scheme is a must for building a house previously its construction begins. It is willing to help for planning home space, estimating the cost of the expenses, allotting the budget, knowing the deadline of the construction and character the schedule of meeting next the architect, designer or house builder. as a result if you are planning to construct a supplementary house without it, then it’s for sure, the home will have a low setting structure and design and then cost you more grant in the long direct because of the mistakes that may arise as soon as the construction starts.

redman mobile home floor plans bestofhouse net 33806 from redman homes floor plans
manufactured homes floor plans redman homes from redman homes floor plans
keystone homes floor plans luxury champion redman from redman homes floor plans
When making a house plan, there are many important points to consider. One is the location where the house will be built. It is usually best to purchase a home back you start to create a house plan. Knowing the area and the type of terrain you chose to build on is obliging to properly plan the house and maximize the manner of the estate area. It’s also valuable to believe to be the lifestyle and the size of the relatives to see how many number of rooms and bathrooms needed, what nice of style and design of the breathing room, kitchen and dining room and how much publicize is needed for each of them. You along with habit to decide the number of your vehicles for you to scheme without difficulty how much big your garage should be. It’s best to discuss these details in imitation of your relatives to make sure that your other house will meet your agreeable of living.

manufactured homes floor plans redman homes from redman homes floor plans
redman mobile home floor plans homes floor plans from redman homes floor plans
redman homes manufactured home for sale from redman homes floor plans
There are lots of ways to get hold of a desired house scheme for your supplementary house. You can search it through the internet and pick from various websites that feature display homes with their corresponding home design plans. Searching for some examples of home plans can be an efficient, intellectual and fast showing off of getting and refining ideas in planning and making your own one.
Certainly, a house plan is necessary in building a house. It helps you visualize how the house should see later when it’s thoroughly finished. Seeing the overall layout and home design will make you sure that the architect has met your correct requirements on its structure, features, designs, styles and all extra important details in building your house. It after that gives the house builder a fine overview upon its house design and guides him every the mannerism through the entire project. fittingly it’s imperative to not be rush in making a house plot to ensure that every your requirements are met and to avoid mistakes. Ideally, preparing a house plot should put up with several weeks and habit a lot of outing later your architect or home builder. undertaking this gives you a prudence that your hew home is built safe and plus assures you its air and excellence.

redman mobile home floor plans furthermore homes mobile from redman homes floor plans
1997 redman mobile home homemade ftempo from redman homes floor plans
redman mobile home floor plans from redman homes floor plans
Here you are at our website, article above published by plougonver.com. Nowadays we are excited to announce that we have discovered a very interesting content to be pointed out. that is, Redman Homes Floor Plans. Lots of people searching for specifics of Redman Homes Floor Plans and certainly one of them is you, is not it?




















